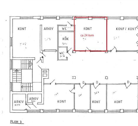
Bolmängsgatan 3A
Industri/Lager/Övrigt - Flen - 400 m2
Trevlig lokal med många möjligheter i närheten av Flen Centrum! En flexibel lokal som kan användas som butik, lager eller produktionslokal med tillhörande personalutrymmen. Lokalen har ingång/kundmottagning från gatan och...