Dokument

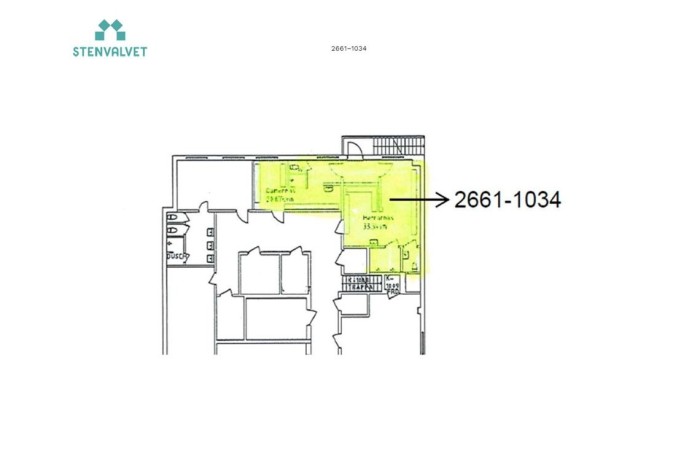
Planlösning 2661-1034

Återbruksvägen 11

Lager/Övrigt, 59 m2, Örebro, Mellringe

Hyra: 716 kr/kvm/år

Omklädningsrum med dusch och WC - Perfekt för verksamhet eller idrottsförening!

Stenvalvet erbjuder omklädningsrum med dusch och toaletter i Mellringe!

Nu finns möjligheten att hyra ett omklädningsrum med dusch och toaletter i Mellringe.
Denna lokal passar perfekt för företag som behöver omklädningsmöjligheter eller idrottföreningar som tränar i Mellringehallen, Mellringe IP eller i närområdet.

Lokalen erbjuder:

- Två separata omklädningsrum
- Duschutrymmen
- Toaletter
- Förvaringsutrymmen för utrustning
- Skåp för förvaring av personliga tillhörigheter

Idag används lokalen som lager/förvaringsutrymme och går även att användas för detta ändamål.

Intresserad? Hör av dig idag!

Omgivning

Fastigheten Athena 19 består av flera byggnader som omges av en grönskande park. I parkens mitt finner du Mellringe herrgård, en historisk pärla från 1600-talet.

Området kombinerar både liv och lugn med verksamheter inom utbildning, vård, äldreomsorg och idrott. I närheten finns även ett nyanlagt vattenområde och ett mysigt promenadstråk som ytterligare bidrar till den avkopplande atmosfären.

Framtidsplanerna för området inkluderar byggnation av flertalet nya bostäder och ett större idrottsområde. Dessutom övervägs en utbyggnad av BRT-systemet, vilket skulle innebära snabbare busstrafik till stora delar av Örebro, tätare avgångar och större punktlighet.

Planlösning

- Två omklädningsrum, vardera utrustade med toaletter och duschar.
- Utrymme för förvaring av tillhörigheter.
- Skåp för säker förvaring av personliga tillhörigheter.

Kommunikationer

Det är lätt att ta sig till området oavsett färdmedel. Från motorvägen når du adressen på mindre än 5 minuter. Busslinje 3 och 4 åker direkt in i området, och det finns cykelvägar hela vägen till och från Örebro centrum.

Service

Det är lätt att ta sig till området oavsett färdmedel. Från motorvägen når du adressen på mindre än 5 minuter. Busslinje 3 och 4 åker direkt in i området, och det finns cykelvägar hela vägen till och från Örebro centrum.

Kontakta Annonsör

Jan Persson

Jan Persson