Getängsvägen 6

Kontor/Lager/Övrigt, 24 m2, Borås

Flexibel lokal på 24 kvm i centrala Borås - perfekt som kontor, lager eller studio. Gemensamt pentry och WC ingår.

Letar du efter en billig och flexibel lokal i centrala Borås? Denna yta på 24 kvm erbjuder en enkel och prisvärd lösning för dig som behöver ett kontor, lagerutrymme eller studio.

Fastigheten är inte toppmodern, men för den som vill komma undan till ett lågt pris är detta ett utmärkt alternativ. Lokalen har tillgång till gemensamt pentry och WC, vilket gör den funktionell och praktisk för vardagliga behov.

Lokalen nås via trappuppgång eller hiss. För enklare in- och urlastning finns en lastbrygga på bottenplan i anslutning till hissen. Getängsvägens centrala läge ger dessutom goda kommunikationsmöjligheter och närhet till Borås centrum.

En idealisk lösning för dig som prioriterar funktion och pris framför exklusivitet.

Kontakta oss gärna för mer information eller för att boka en visning!

Omgivning

Vägbeskrivning:

Getängsvägen 6 ligger i Borås västra del, med smidig anslutning till riksväg 40. Från Borås centrum tar det bara några minuter med bil, och du följer enklast Västerlånggatan mot Getängsvägen. För den som åker kollektivt finns hållplatser inom gångavstånd, och området är lättillgängligt för både kunder och leverantörer.

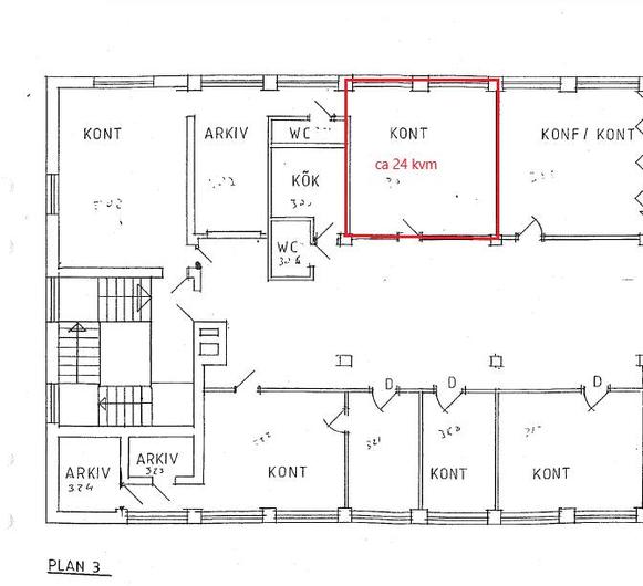
Planlösning

Planlösning:

Yta på ca 24 kvm. Finns gemensam pentry och wc att nyttja.

Övrigt

Kontraktlängd:

Förhandlingsbart

Kontrakttyp:

Förstahandskontrakt

Prisinformation:

2500kr/mån

I hyran ingår:

Värme, skatt, el

Hyresinformation:

2500kr/mån ink drift

Kontakta Annonsör

Tobias Falk

Tobias Falk