Dokument

Planlösning, Lager 304 kvm - Flaggan 1.pdf

Laholmsvägen 84

Industri/Lager/Övrigt, 304 m2, Halmstad

Hyra: Kontakta annonsören

Lagerlokal med markport och utmärkt läge på Laholmsvägen

Nu finns envälskött lagerlokalom304 kvmatt hyra i enindustri- och butiksfastighetmed lättillgängligt läge utmed Laholmsvägen - en av Halmstads mest trafikerade infartsleder.

Lokalen i korthet:


  • Öppna ytor och generös takhöjd:Lagret harfyra meters takhöjd, vilket ger flexibel användning och gott om utrymme.

  • Smidig logistik:Enmarkportsäkerställer enkel in- och utlastning.

  • Faciliteter:Tillhörande personalrum medkök/pentryochWCingår, vilket ger goda förutsättningar för en bekväm arbetsmiljö.

  • Parkering:Fri parkering i anslutning till byggnaden underlättar både för personal och besökare.


Området:
IndustriområdetLarsfridligger endast3 kilometer söder om centrala Halmstadoch utgör ett optimalt logistikläge i direkt anslutning till E6/E20, nära Halmstad hamn samt vid knutpunkten för riksväg 15, 25 och 26. Högskoleområdet erbjuder ett brett serviceutbud av butiker och restauranger. Det finns goda kollektivtrafikförbindelser med buss till centrala Halmstad.

Kontakta oss för mer information eller för att boka en visning!

Omgivning

Företag i närheten:

Lidl, Snabbgross, Derome, Biltema Logistics AB och Access Logistics

Parkeringsmöjligheter/garage:

Fri parkering

Skyltläge:

Bra exponering av skyltläge i ett levande och expansivt område

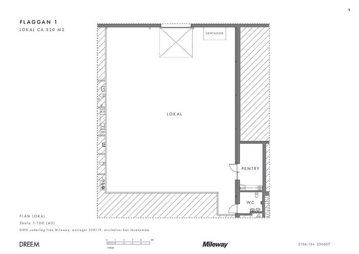
Planlösning

Fastighetsbeteckning:

Flaggan 1

Byggår:

1959

Våningsplan:

1 av 1

Planlösning:

Se bilder/PDF.

Kommunikationer

Goda kollektivtrafikförbindelser med buss till centrala Halmstad

Service

Närservice:

Högskoleområdet erbjuder ett brett serviceutbud av butiker och restauranger

Övrigt

Takhöjd:

4 m

Lokalen kan nås via:

Egen entré och en markport

Kontraktlängd:

Förhandlingsbart

Kontrakttyp:

Förstahandskontrakt

Tillträde:

Omgående

Kontakta Annonsör

Alexander Otelea

Alexander Otelea