Dokument

Fanan 47_Floor Plan_Floor 1-2_Kontorshotell.pdf

Linjegatan 3

Kontor/Kontorshotell, 12 - 46 m2, Halmstad

Hyra: Kontakta annonsören

Modernt kontorshotell med lediga rum och gemensamma faciliteter

Kontorsfastighet med modernt kontorshotell fördelat på två våningsplan. Här erbjuds fina gemensamma faciliteter och kontorsrum om 12 - 46 kvm som kan kombineras i flexibla lösningar för att få tillgång till den storlek som verksamheten behöver. Byggnaden ligger med fri access mot Linjegatan och det finns parkering mot avgift i anslutning till lokalerna.

Industriområdet Larsfrid ligger endast 3 kilometer söder om centrala Halmstad och utgör ett optimalt logistikläge i direkt anslutning till E6/E20, nära Halmstad hamn samt vid knutpunkten för riksväg 15, 25 och 26. Högskoleområdet erbjuder ett brett serviceutbud av butiker och restauranger. Det finns goda kollektivtrafikförbindelser med buss till centrala Halmstad.

Omgivning

Företag i närheten:

Lidl, Snabbgross, Derome, Biltema Logistics AB och Access Logistics

Parkeringsmöjligheter/garage:

Parkering mot avgift i anslutning till lokalerna

Vägbeskrivning:

Direkt anslutning till E6/E20 och riksväg 15/25/26

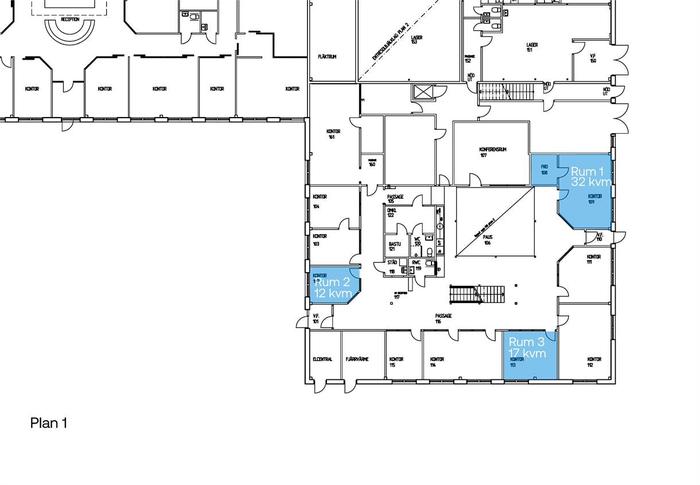
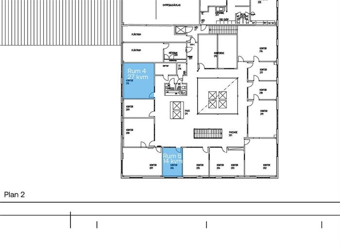
Planlösning

Fastighetsbeteckning:

Fanan 47

Byggår:

1990

Våningsplan:

1 av 2

Planlösning:

Se planritning bland bilder.

Kommunikationer

Goda kollektivtrafikförbindelser med buss till centrala Halmstad

Service

Närservice:

Högskoleområdet erbjuder ett brett serviceutbud av butiker och restauranger

Övrigt

Lokalen kan nås via:

Gemensam entré

Kontraktlängd:

Förhandlingsbart

Kontrakttyp:

Förstahandskontrakt

Tillträde:

Omgående

Kontakta Annonsör

Alexander Otelea

Alexander Otelea