Verkstadsgatan 4
Butik/Kontor - Halmstad - Vilhelmsfält - 207 m2
Tillgänglighets anpassad kontorslokal Fin tillgänglighetsanpassad kontorslokal med bra parkeriingsmöljligheter. lokalen gjordes i ordning för något år sen.
Butik/Kontor - Halmstad - Vilhelmsfält - 207 m2
Tillgänglighets anpassad kontorslokal Fin tillgänglighetsanpassad kontorslokal med bra parkeriingsmöljligheter. lokalen gjordes i ordning för något år sen.
Butik/Kontor - Halmstad - Öster - 200 m2
Ett riktigt fint kontor med otroligt mycket karaktär på Lokstallarna. Ett riktigt fint kontor med otroligt mycket karaktär på Lokstallarna. Fin välkomnande entre och en bra fördelning av kontor/mötesrum och...
Butik/Kontor/Övrigt - Halmstad - 637 m2
Butikslokal med stora skyltfönster och bästa skyltläge vid vältrafikerade Laholmsvägen Ljus och trevlig butikslokal om637 kvmmedutmärkt exponeringmot Laholmsvägen, en av Halmstads mest trafikerade infartsleder. Här erbjuds stora skyltfönster som germaximal...
Butik/Industri/Kontor - Halmstad - Vilhelmsfält - 896 - 2609 m2
Nyrenoverade industrilokaler - flexibla ytor för verkstad, bilförsäljning, butik eller lager! Nu finns möjlighet att hyra moderna och anpassningsbara lokaler upp till2 609 kvmi en stor industrifastighet. Lokalerna lämpar sig...
Industri/Kontor/Lager - Halmstad - Sannarp - 510 m2
Lagerlokal med kontor och fulla faciliteter - strategiskt läge i Sannarp Nu finns möjlighet att hyra enfunktionell och lättillgänglig lagerlokal om 510 kvmpå markplan, inklusive en mindre kontorsdel.Lokalen har en...
Industri/Kontor/Lager - Halmstad - 636 m2
Kombinerad lager- och kontorslokal med lasthus på bästa läge intill Laholmsvägen, med direkt anslutning till motorväg Stor industrifastighet på bästa läge i Halmstad med en ledig kombilokal om 636 kvm...
Industri/Kontor/Lager - Halmstad - 14580 m2
Effektiv logistikfastighet med lasthus, kontor och showroom -strategiskt läge intill E6 i Halmstad Här erbjuds en komplett lager- och logistikfastighet om totalt 14 580 kvm i utmärkt skick, med direktaccess...
Industri/Kontor/Lager - Halmstad - Vilhelmsfält - 386 m2
Riktigt fin verkstads/lager lokal som kan kombineras med kontor Fin verkstadslokal som nås via en port idag. Går att kombinera med kontor som nås från huvudentren till fastigheten. Funkar perfekt...
Industri/Kontor/Lager - Halmstad - 189 m2
Lättillgänglig lagerlokal med markport finns att hyra på Laholmsvägen Industri- och butiksfastighet med ledig lagerlokal om 189 kvm. Lokalen är belägen på markplan och har flera fönster som ger ett...
Industri/Kontor/Lager - Halmstad - 1503 - 7351 m2
Lediga lager- och terminalytor med höglager, 13 lasthus och flexibel utformning i optimalt logistikläge Nu finns möjlighet att hyra en stor och anpassningsbar lager/terminal- och kontorslokal iattraktiva Halmstad, strategiskt belägen...
Industri/Kontor/Lager - Halmstad - 519 m2
Kontorslokal i gott skick med fräscha faciliteter och tillhörande lageryta Trevlig fastighet med ledig kontorslokal inklusive lageryta om totalt 519 kvm. Lokalen är belägen på markplan, är utrustad med LED-belysning...
Industri/Kontor/Lager - Halmstad - 615 m2
Lager med egen markport och kontor på bästa logistikläge i Halmstad Nu finns möjlighet att hyra enfräsch och välplanerad lagerlokalmed kontor i ett strategiskt logistikläge i Halmstad. Lokalens fördelar: Totalyta:615...
Industri/Kontor/Lager - Halmstad - Sannarp - 212 m2
Flexibel kontors- och lagerlokal med anpassningsmöjligheter i Sannarp Nu finns chansen att hyra en kontors- och lagerlokal på markplan om212 kvm, där ni har möjlighet att påverka utformningen för att...
Industri/Kontor/Lager - Halmstad - 540 m2
Modern och flexibel kontorslokal med tillhörande lager/verkstad och gott om parkeringsplatser på inhägnat område Nu finns möjligheten att hyra en ljus, modern och välplanerad kombilokal i toppskick! Med ca 440...
Industri/Kontor/Lager - Halmstad - 5058 m2
Modernt höglager med showroom, lastkaj och kontorsdel i toppskick finns att hyra i Halmstad Perfekt för er som söker ett modernt höglager med förstklassiga kontorsytor och ett optimalt logistikläge. Denna...
Kontor - Halmstad - Vilhelmsfält - 95 m2
Bra kontorslokal med utmärkt läge nära E6 i Halmstad Upptäck enpraktisk och inspirerande kontorslokal, perfekt för det mindre företaget, belägen på ett strategiskt och lättillgängligt läge vid infarten till Halmstad....
Kontor - Halmstad - Vilhelmsfält - 96 m2
Kontorslokal i bra läge nära E6 i Halmstad Upptäck enpraktisk och inspirerande kontorslokal, perfekt för det mindre företaget, belägen på ett strategiskt och lättillgängligt läge vid infarten till Halmstad. Här...
Kontor - Halmstad - 50 m2
Fräsch kontorlokal på 50 kvm i Larsfridsområdet i Halmstad Lokalen erbjuder: Nyrenoverad och fräschmed moderna material och detaljer. Fullt utrustad: Gott med parkeringsplatser, nedanför samt på baksidan. Trevliga grannar -...
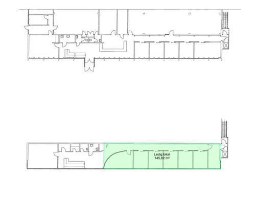
Kontor - Halmstad - 145 m2
Smidig kontorslokal på plan 2 om 145 kvm på Larsfridsvägen i Halmstad Här hittar du en smidig kontorlokal om 145 kvm, flera kontorsrum i fil. Smidigt läge med närhet till...
Kontor - Halmstad - Vilhelmsfält - 96 m2
Flexibel kontorslokal på bra läge nära E6 i Halmstad Upptäck enpraktisk och inspirerande kontorslokal, perfekt för det mindre företaget, belägen på ett strategiskt och lättillgängligt läge vid infarten till Halmstad....
Kontor - Halmstad - 300 m2
Bra kontorslokal på plan 2 i populärt industiområde. Välkommen till Söndrums industriområde där vi erbjuder ett kontor med mycket ljusinsläpp och kontorsrum i bra storlek. Lokalen består av åtta mindre...
Butik/Kontor/Lager - Halmstad - 576 m2
Lokal för många användningsområden på Flygstaden. På Flygstaden finns en fin butiks/kontors lokal. Ytan ligger på bottenvåningen. Vi hittar en bra lösning för just ditt företag. Lokalen har två portar...
Butik/Kontor - Halmstad - 875 m2
Anpassningsbar yta på Flygstaden. Letar ni efter en butiks eller kontorslokal på Flygstaden? Här finns den perfekta lokalen som går att anpassa efter era behov! Magisk utsikt över Vapnödalen. Tillsammans...
Kontor - Halmstad - 430 m2
Läckert kontor med omklädningsrum och tvättrum En otroligt läcker lokal utmed Larsfridsvägen, med direkt anslutning till södrainfarten och E6. Häftigt utforat kontor med öppna arbetsplatser som kombineras med kontorsrum och...
Butik/Industri/Kontor - Halmstad - Öster - 223 m2
En otrolig lokal med massor av karaktär på Lokstallarna Letar du efter en lokal som har det där extra? En otrolig lokal med massor av karaktär som kan fungera som...
Kontor - Halmstad - Öster - 290 m2
Unikt kontor i 3 plan. Letar du efter ett charmigt kontor med fiskbensparkett och den gamla biljettluckan sparad på Lokstallarna? Här finns den! Nära kommunikationer som centralstationen och bra med...
Kontor/Kontorshotell - Halmstad - 12 - 46 m2
Modernt kontorshotell med lediga rum och gemensamma faciliteter Kontorsfastighet med modernt kontorshotell fördelat på två våningsplan. Här erbjuds fina gemensamma faciliteter och kontorsrum om 12 - 46 kvm som kan...
Kontor - Halmstad - 448 - 578 m2
Ledig kontorslokal i Larsfrid med goda möjligheter till anpassningar efter ny hyresgäst Stor industrifastighet med lediga lager- och kontorslokaler med stor flexibilitet i anpassningar efter ny hyresgäst. Kontorslokal på plan...
Industri/Kontor/Lager - Halmstad - 150 - 2350 m2
Kontor med möjlighet till lager/verkstad på Flygstaden En möjlighet till att etablera en verksamhet som har behov av både kontor och lager/verkstad. Kontorsdelen ligger utmed kristinebergsvägen och har goda parkerings...
Industri/Kontor/Lager - Halmstad - 400 m2
Kontorslokaler med stor potential på andra våningen. På ett attraktivt läge utmed Kristinebergsvägen erbjuder vi ett kontor på våning 2. Bra med parkeringsplatser intill och utmed fastigheten. I närheten av...
Butik/Kontor/Lager - Halmstad - 432 m2
Fin butikslokal Fin butikslokal på Flygstaden. Bra skyltläge.
Industri/Kontor/Lager - Halmstad - 1600 - 4140 m2
Flexibla och prisvärda lagerytor som kan anpassas för just er verksamhet Här erbjuds flexibla lagerytor som kan anpassas efter behov, med möjlighet till korttidsavtal vid önskemål. Lokalen kan hyras i...
Kontor/Lager/Övrigt - Halmstad - 153 m2
Ljus och flexibel kontorslokal om 153 kvm - perfekt för mindre företag eller start-up Nu finns möjlighet att hyra en kontorslokal om 153 kvm, idealisk för det mindre företaget eller...
Industri/Kontor/Lager - Halmstad - Sannarp - 912 m2
Lager- och kontorslokal i strategiskt läge - 912 kvm på markplan Lättillgänglig lokal om totalt 912 kvm i Sannarp industriområde, med ca 700 kvm lager och 212 kvm kontor. Lokalen...
Industri/Kontor/Lager - Halmstad - 1503 m2
Modern lagerlokal med 8 meters takhöjd, 7 lasthus och flexibla kontorsytor Nu finns möjlighet att hyra en renoverad och modern lagerlokal om totalt 1 503 kvm, strategiskt belägen i Larsfrid...
Industri/Kontor/Lager - Halmstad - 650 m2
Flexibel lager- och kontorslokal i fräscht skick - Strategiskt läge i Larsfrid, Halmstad Nu finns möjligheten att hyra enfunktionell och flexibel lokal om 650 kvmi mycket gott skick, renoverad 2018....
Industri/Kontor/Lager - Halmstad - Sannarp - 261 m2
Verkstadslokal med markport belägen intill E6, Halmstad Nu finns möjlighet att hyra en funktionell och lättillgänglig lokal om261 kvm, idealisk för bilverkstad, serviceverksamhet, mindre produktion eller lager. Lokalen ligger påett...
Kontor/Övrigt - Halmstad - 394 m2
Flexibel kontorslokal med möjlighet att skräddarsy enligt era önskemål Nu finns möjligheten att hyra enkontorslokal om 394 kvmpå ett strategiskt läge nära Halmstad centrum. Lokalen kommerrenoveras och anpassasi samråd med...
Kontor/Övrigt - Halmstad - Sannarp - 308 - 380 m2
Flexibel kontor/utbildningslokal finns att hyra i attraktiva Sannarp strax utanför centrala Halmstad Trevlig fastighet med ledig kontorslokal om 308 kvm belägen på plan tre. Här erbjuds större kontorsrum som även...
Södra Hallands stolthet Halmstad, är en modern stad som en gång byggts upp tack vare skepps- och textilindustri. Staden är förlagd vid Nissan där gamla vackra skepp ligger förankrade. Centrum erbjuder vackra korsvirkeshus och på sommaren kryllar det av liv på gågator och torg. Här duggar barer och klubbar tätt. Det är den långa och förnäma sandstranden Tylösand som drar mängder med turister varje år. För utsocknes är Per Gessle stadens största kändis, för konstälskare är det Halmstadsgruppen som förknippas med staden.