Erik Dahlbergsgatan 36

Lager/Övrigt, 70 - 74 m2, Stockholm, Gärdet

Hyra: Kontakta lokalförmedlaren för mer info.

Lagerlokal i bästa läge på nedre Gärdet finns nu tillgänglig! Bra lastaccess för mindre lastbilar.

Lokalen kan passa utmärkt för olika hantverkare eller som lagerlokal för förvaring.

Fastigheten                                                                           
Huset färdigställdes år 1935.

Om lokalen
Lokalen utgörs av en helt öppen lageryta med ljusinsläpp från tre stycken högt sittande fönster. Wc finns alldeles utanför lokalen vilken kommer att fräscha upp innan tillträde. Lokalen saknar idag pentry.

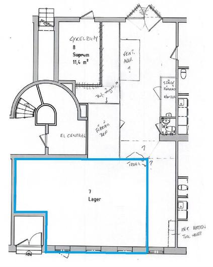
På utsidan sitter en dubbelport om ca 2,60 M bred och ca 2.32 M hög. Innanför denna kommer ett nytt ventilationsaggregat att installeras vilket förser lokalen med luft. Innanför ventilationsaggregatet kommer föreningen att bygga ett mindre förråd för eget bruk. Innanför föreningens förråd kommer en lokalavskiljande vägg med port att byggas vilken avgränsar lokalen. Se ritningen i annonsen för tydliggörande.

Storleken på lokalen kan därför variera mellan 70-74 m2 beroende på hur den lokalavskiljande väggen byggs. 

Lastaccessen till lokalen är bra då det går att parkera en mindre lastbil framför porten. Det går dock inte att köra runt utan man måste backa ut igen.

Takhöjd:ca 2,62 M upp till betong och ca 2,29 M upp till takstege.

Bredband:Fiber finns indraget via Telia och Stokab finns anslutet till fastigheten.

Omgivning

Omgivning/natur:

Lugnt och trivsamt område med fin natur så som närhet t till Ladugårdsgärdets fridfulla strövområden. Förflyttar du dig ytterligare en bit bort så har Du Kungliga Djurgården framför Dina fötter med fina promenadstråk.

Parkeringsmöjligheter/garage:

På intilliggande gator och parkeringshus, exempelvis Q-park vid Fältöversten och Stockholms Parkering har ett parkeringshus på Östermalmsgatan 48 med endast är några månaders kötid. Det är relativt lätt att hitta lediga platser utomhus längs Valhallavägens Allé med avgift enligt stadens tariff.

Planlösning

Byggår:

1935

Kommunikationer

Mycket bra kommunikationer med gångavstånd till tunnelbanestationerna Stadion, Karlaplan och Gärdet. Flera busslinjer trafikerar området. För bilister finns nära anslutning till E4:an.

Service

Närservice:

Det geografiska läget erbjuder ett utmärkt serviceutbud för företaget som värdesätter effektivitet och bekvämlighet. Här finns allt inom räckhåll - från banker, postombud, kontorsservice till restauranger, caféer och butiker som underlättar vardagen. Inom några minuters promenad ligger Fältöverstens galleria samt Östermalmstorg och Karlaplan med ett stort utbud av butiker, restauranger, caféer, Systembolaget etc. Adressen är ett bra val för företaget som vill kombinera ett strategiskt läge med tillgång till all nödvändig service.

Övrigt

Övrigt:

Föreningen har fri prövningsrätt vad gäller val av hyresgäst och verksamhet. Vänligen respektera föreningens önskemål om att all kontakt och visningar skall ske via mäklaren.

Tillträde:

Tillträde kan ske enligt överenskommelse.

Hyresinformation:

Kontakta lokalförmedlaren för mer info.

Kontakta Annonsör

Hanna Friman

Hanna Friman