Lagervägen 1

Lager/Mark/Övrigt, 3100 m2, Stockholm

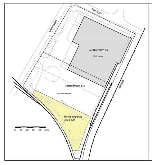
Ledig mark om cirka 3 000 kvm hyrs ut på industrifastighet

ENDAST UTHYRNING UTAV MARK FÖR UPPSTÄLLNINGSYTA. EJ TILL SALU.

Industrifastighet med ledig markyta för uthyrning om cirka 3 100 kvm som kan användas till uppställningsyta. Det finns goda möjligheter att anpassa markytan efter hyresgästens behov, exempelvis genom att dela av i mindre ytor från ca 1 000 kvadratmeter, hägna in området med stängsel och grind samt lägga grus.

Jordbro ligger cirka 25 kilometer söder om centrala Stockholm, på ett strategiskt läge med nära anslutning till riksväg 73. Riksväg 73 går från Nynäshamn genom Jordbro och sträcker sig till centrala Stockholm, där ett nätverk av trafikleder över hela landet knyts samman. Fastigheten är belägen i Jordbro Företagspark som är ett av Stockholmsregionens största och mest expansiva industriområden. Området präglas av industri- och logistikverksamheter och hel del handel med stora aktörer. Serviceutbud med ett flertal restauranger, matvarubutik, gym och apotek finns i närområdet. Det finns goda kollektivtrafikförbindelser med buss och pendel till Stockholm med omnejd.

Omgivning

Företag i närheten:

Coca-Cola, Bring, TD TechData, Frigoscandia, Dagab, Åhléns och Green Cargo

Parkeringsmöjligheter/garage:

n/a

Skyltläge:

Bra skyltläge mot Nynäsvägen

Vägbeskrivning:

Nära anslutning till riksväg 73

Planlösning

VA:

Nej

Kommunikationer

Goda kollektivtrafikförbindelser med buss och pendel till Stockholm med omnejd

Service

Närservice:

Lokalt serviceutbud med bland annat lunchrestauranger, gym och apotek

Övrigt

Servitut:

Nej

Övriga gravatitioner:

n/a

Planbestämmelser:

n/a

Gemensamhets-anläggningar:

Inga

Byggrätt (m²):

0

Typ av kontrakt:

Till salu

Tillträde:

Omgående

Kontakta Annonsör

Jonatan Westerblom

Jonatan Westerblom