Armaturvägen 3D
Stockholm, 193 m2
Kombinerad lager- och kontorslokal om 193 kvm med egen markport och fräscha kontorsytor Lager- och kontorslokal om 193 kvm fördelad...
Dokument
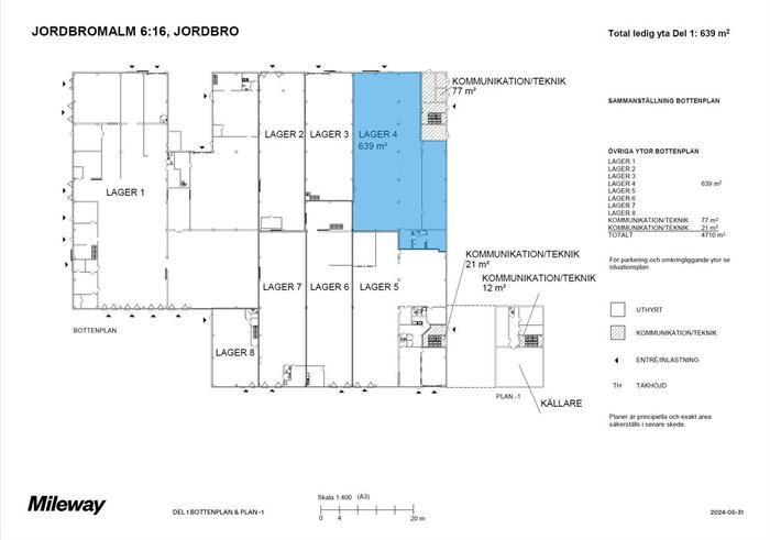
Ritningar Jordbromalm 6-16_Unit 4.pdfIndustri/Lager, 639 m2, Stockholm
Hyra: Kontakta annonsören
Nu finns möjlighet att hyra en rymlig lagerlokal med nyrenoverade personalutrymmen - perfekt för industriverksamhet, verkstad eller effektiv lagerhållning
Lagerlokal - 639 kvm (markplan):
Generös fri takhöjd om cirka 6 meter
Stor markport med höjd om ca 4,5 meter för smidig in- och utlastning
Gott om trefasuttag och nyinstallerad LED-belysning för effektiv drift
Viss yta för uppställning erbjuds direkt utanför porten
Fastigheten är belägen inom inhägnat område med tillhörande parkeringsplatser precis utanför lokalen
Personal- och kontorsdelar:
Nyrenoverade utrymmen med god standard
Ljusa kontorsytor med plats för både administration och kundmöten
Komplett personaldel med:
Pentry/pausrum
Omklädningsrum
Dusch
WC
Nytillskapad separat kundentré - idealisk för mottagning eller showroom
Området - Jordbro Företagspark:
Fastigheten är belägen iJordbro Företagspark, ett av Stockholmsregionens största och mest dynamiska industriområden. Jordbro ligger cirka 25 km söder om centrala Stockholm, med mycket goda kommunikationer viariksväg 73, som binder samman Nynäshamn och Stockholm. Detta ger snabb access till hela det regionala och nationella vägnätet.
Området har en stark närvaro avlogistik-, produktions- och handelsverksamheter, där både internationella och svenska aktörer etablerat sig. Det finns ett brettserviceutbudi närområdet med bl.a. restauranger, livsmedelsbutik, gym och apotek.
Kollektivtrafikfinns inom bekvämt avstånd - både buss och pendeltåg trafikerar området, vilket gör det enkelt för både personal och kunder att ta sig hit. Den strategiska placeringen i kombination med ett välutvecklat företagsklimat gör Jordbro Företagspark till ett attraktivt val för moderna verksamheter.
Coca-Cola, Bring, TD TechData, Frigoscandia, Dagab, Åhléns och Green Cargo
Parkeringsmöjligheter/garage:Parkeringsplatser i anslutning till lokalen
Vägbeskrivning:Nära anslutning till riksväg 73
Jordbromalm 6:16
Byggår:1977
Renoveringsår:2003
Planlösning:Finns bland bilder/PDF.
Goda kollektivtrafikförbindelser med buss och pendel till Stockholm med omnejd
Lokalt serviceutbud med bland annat lunchrestauranger, gym och apotek
6 m
Lokalen kan nås via:En markport samt en kundentré
Kontraktlängd:Förhandlingsbart
Kontrakttyp:Förstahandskontrakt
Tillträde:Omgående