Dokument

Planritning_Plan 1 & 2.pdf

Lagervägen 36

Industri/Kontor/Lager, 5469 m2, Stockholm

Hyra: Kontakta annonsören

Rymlig lagerlokal med fyra lasthus och fräscht kontor - strategiskt läge i Jordbro

Nu finns möjligheten att hyra en rymlig och välutrustad lagerlokal om totalt5 469 kvm, inklusive kontorsytor, i ett av Stockholmsregionens mest etablerade industri- och logistikområden. Lokalen kombinerar hög funktionalitet med modern standard och erbjuder optimala förutsättningar för effektiv drift.

Fastigheten erbjuder:


  • Lagerutrymme:


    • Total lageryta medupp till 7 meter fri takhöjdför flexibel lagring och god volymkapacitet.


    • Fyra lasthus- två placerade i vardera ände av lokalen - ger smidiga in- och utlastningsmöjligheter och underlättar logistikflöden.


    • Nyligen installerad LED-belysningi hela lokalen, vilket ger energieffektiv belysning och bättre arbetsmiljö.




  • Kontor och personalutrymmen:


    • Fräscha kontorsytor med modern planlösning.


    • WC, pentry, kök och omklädningsrum- allt för en bekväm och praktisk arbetsmiljö.


    • Möjlighet att anpassa kontorsdelen efter verksamhetens behov.




Läge:
Fastigheten ligger iJordbro Företagspark, cirka 25 km söder om centrala Stockholm. Här finns direkt närhet till riksväg 73, som snabbt ansluter till både Stockholm och Nynäshamn. Området är väl etablerat med många större aktörer och har gott om service såsom restauranger, matbutiker, gym och apotek. Kollektivtrafiken är väl utbyggd med bussar och pendeltåg, vilket ger enkel pendling från hela regionen.

Kontakta oss för mer information och visning!

Omgivning

Företag i närheten:

Coca-Cola, Bring, TD TechData, Frigoscandia, Dagab, Åhléns och Green Cargo

Parkeringsmöjligheter/garage:

Parkeringsplatser i anslutning till lokalen

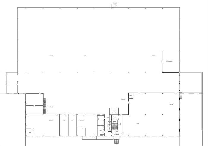
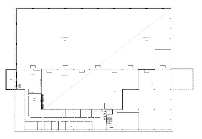
Planlösning

Fastighetsbeteckning:

Jordbromalm 6:18

Byggår:

2012

Våningsplan:

1 av 2

Planlösning:

Finns bland bilder/PDF.

Kommunikationer

Goda kollektivtrafikförbindelser med buss och pendel till Stockholm med omnejd

Service

Närservice:

Lokalt serviceutbud med bland annat lunchrestauranger, gym och apotek

Övrigt

Takhöjd:

7 m

Lokalen kan nås via:

4 lasthus samt egen entré via trapphus/hiss

Hiss:

Ja

Kontraktlängd:

Förhandlingsbart

Kontrakttyp:

Förstahandskontrakt

Tillträde:

2026-05-01.

Kontakta Annonsör

Besart Ferizi

Besart Ferizi