Dokument

O¨VERSIKT DEL 2.pdf

Göteborgsvägen 51

Lager/Övrigt, 200 m2, Borås

Hyra: 600 kr/m²/år

Ljus lageryta på 200 kvm - Enkel access och bra inomhusklimat

Letar du efter en ljus och flexibel lokal med enkel access?
Denna200 kvm stora ytaerbjuder enöppen och ventilerad planlösning med generöst ljusinsläpp, vilket gör den idealisk förstudio, showroom, konsthall eller produktionshall, men den kan även fungera somförråd eller verkstad.

Lokalen liggervägg i vägg med vårt nyrenoverade kontorshotell, vilket ger möjlighet till enkomplett arbetslösningmed bådekontorsplats och gemensamma faciliteter.

Egenskaper & fördelar:
Smidig access- Fordon under 3 meter kan parkera endast 10 meter från lokalen.
Två ingångar & stora öppningsbara dörrar- Enkel in- och utlastning.
Bekvämligheter- Tillgång till toalett, kök och lounge i kontorshotellet bredvid.
Bra inomhusklimat- Ventilerade ytor med flera element för en behaglig arbetsmiljö.
Möjlighet till WiFi- Koppla upp din verksamhet enkelt.
Högt i tak- Skapar en rymlig och flexibel lokal.
Anpassningsbar- Möjlighet att måla om och anpassa ytan efter din verksamhet.
Kombinationsmöjlighet- Kan hyras tillsammans med kontor i kontorshotellet.

Läge & tillgänglighet:
📍 10 min till Borås C & 45 min till Göteborg - Lugnt, naturnära läge vid Viaredsjön.
📦 Mångsidig användning - Passar som studio, showroom, konsthall, produktionshall eller förråd.
🚗 Snabb access till Riksväg 40 - Enkel pendling och logistikmöjligheter.

Denna lokal är enperfekt kombination av industriell känsla och funktionalitet- med ljus, volym och flexibilitet för både kreativa och praktiska verksamheter.
Kontakta oss för mer information eller för att boka visning!

Omgivning

Omgivning/natur:

Fastigheten ligger precis i kanten av Viaredsjön med egen brygga

Företag i närheten:

Lisol, Alvön, Jirotex, Casca, JQ Motor, Advokatbyrå och Borås expressen med flera

Parkeringsmöjligheter/garage:

Goda parkeringsmöjligheter finns i direkt anslutning till fastigheten

Skyltläge:

Ja

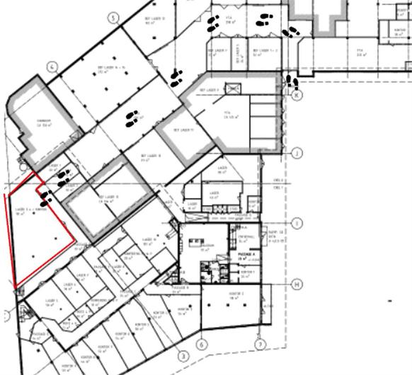
Planlösning

Fastighetsbeteckning:

Viken 4:1

Renoveringsår:

2022

Våningsplan:

1 av 2

Antal rum:

1

Planlösning:

Öppen planlösning.

Kommunikationer

Hållplatsen precis utanför kontorshotellet är Göteborgsvägen, där busslinje 5 trafikerar sträckan mellan Brämhult, Borås centrum och Sjömarken.

Service

Närservice:

I närheten finns flera lunchrestauranger, caféer, mataffärer, apotek och gym - allt du behöver för en smidig arbetsdag!

Övrigt

Kontraktlängd:

Förhandlingsbart

Kontrakttyp:

Förstahandskontrakt

Tillträde:

Omgående

Pris/överlåtelseavgift:

150 kr

Utgångshyra kr/m2/år:

600

I hyran ingår:

Värme, skatt, el

Kontakta Annonsör

Linn Åhsberg

Linn Åhsberg