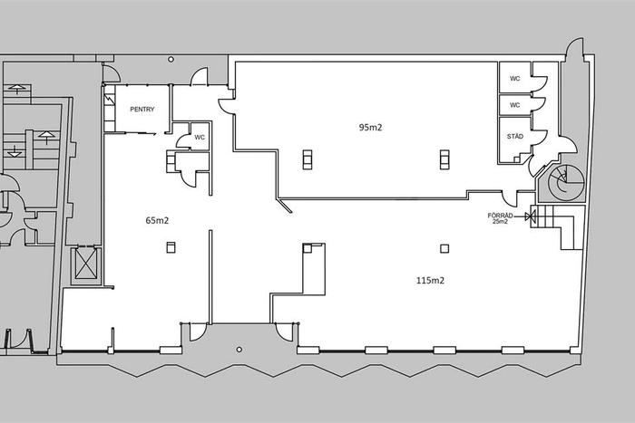
Mossvägen 1
Mora, 220 m2
Del av kontorshus på Örjastäppans industriområde uthyres. Utformande kan anpassas efter önskemål och behov. Kontakta ansvarig för mer information och...
Dokument
Planlösn[…].Planlösning_entreochkällareIndustri/Lager/Övrigt, 80 - 800 m2, Mora