Krokslätts Fabriker 34
Kontor/Kontor - Göteborg - Mölndal - 1500 m2
Modernt kontor i anrik industribyggnad i Krokslätts Fabriker. 5 meters takhöjd i stora delar av lokalen och med ett entresolplan som gör lokalen sammanhållen.
Kontor/Kontor - Göteborg - Mölndal - 1500 m2
Modernt kontor i anrik industribyggnad i Krokslätts Fabriker. 5 meters takhöjd i stora delar av lokalen och med ett entresolplan som gör lokalen sammanhållen.
Kontor - Stockholm - Stockholm CBD - 788 - 2347 m2
Ett drömkontor i ett helt oslagbart läge Stureplan 8 har ett av Stockholms bästa lägen. Snart kan ditt företag flytta in till toppmoderna kontor här. Vi på Afa Fastigheter bygger...
Kontor - Stockholm - Kungsholmen - 912 m2
Ljus kontorslokal i två plan med industrikänsla – högst upp i fastigheten på Kungsholmen Nu finns möjlighet att hyra en karaktärsfull kontorslokal om 912 kvm på Alströmergatan 20. Lokalen är...
Kontor - Stockholm - Stadshagen - 5000 - 11711 m2
Ett ljust och modernt kontor i ett expansivt framtidsområde www.lindhagen.nu Ett superläge i Lindhagen, ett av Stockholms mest expansiva områden. Bara minuter från härliga Hornsberg med strandpromenad, badbryggor och ett...
Lager - Halmstad - Sannarp - 103 m2
Ledig lagerlokal med delad markport Lättillgänglig och funktionell lagerlokal om 103 kvm i populära Sannarp industriområde. Lokalen passar perfekt för företag som söker en praktisk yta förförvaring eller enklare lagerverksamhet.Lokalen...
Lager/Mark/Övrigt - Malmö - Hamnen - övrigt - 4500 m2
Flexibel uppställningsyta i Mellersta hamnen - upp till 4 500 kvm Nu finns möjlighet att hyra en anpassningsbar markyta om 4 500, perfekt för utomhuslagring. Ytan kan grusas, asfalteras eller...
Kontor/Lager/Övrigt - Stockholm - Veddesta - 99 m2
Praktisk och flexibel kontorslokal om 99 kvm Denna öppna och lättillgängliga lokal passar utmärkt som driftkontor, enklare lager eller för verksamheter inom exempelvis byggbranschen som behöver yta för förvaring och...
Industri/Lager - Malmö - Östra Hamnen - 228 m2
Lagerlokal om 228 kvm med egen markport Här finns en inflyttningsredo lokal om 228 kvm som lämpar sig utmärkt för verksamheter inom service, lager och småskalig logistik. Lokalen erbjuder goda...
Butik/Kontor/Lager - Malmö - Östra Hamnen - 357 m2
Representativ lokal för lager/showroom i anrika Tobaksfabriken, Malmö Välkommen till Tobaksfabriken - en historisk och karaktärsfull fastighet där modern funktion möter industriell charm, perfekt för företag som söker kombinerade ytor...
Industri/Kontor/Lager - Stockholm - 625 m2
Flexibel kombilokal om 625 kvm - lager och kontor i Tuna nära Tumba Välplanerad och funktionell kombilokal med totalt 625 kvm, fördelat på 375 kvm lager i markplan och 250...
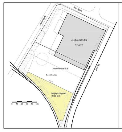
Industri/Kontor/Lager - Stockholm - 320 m2
Flexibel och välutrustad lager- och kontorslokal i Jordbro Nu finns möjlighet att hyra en kombinerad lager- och kontorslokal i mycket gott skick - perfekt för verksamheter som söker effektiva ytor...
Industri/Lager - Stockholm - 639 m2
Rymlig lagerlokal med renoverade personalutrymmen i Jordbro Företagspark Nu finns möjlighet att hyra en rymlig lagerlokal med nyrenoverade personalutrymmen - perfekt för industriverksamhet, verkstad eller effektiv lagerhållning Lagerlokal - 639...
Industri/Kontor/Lager - Helsingborg - Långeberga - 2245 - 15100 m2
Optimal logistiklokal för grönsaks- och livsmedelsgrossister i Långeberga, Helsingborg. Välkommen till denna logistik- och lagerfastighet om totalt15 100 kvm, medflexibel planlösningoch möjlighet attanpassa ytorna helt efter verksamhetens behov. Lokalen kan...
Industri/Lager - Stockholm - Eriksberg - 846 m2
Rymlig lagerlokal med två markportar och utmärkt logistikläge i Eriksberg Lagerlokal om totalt846 kvm, fördelat på både markplan och entresol. Lokalen är rymlig med stora fria ytor och erbjuder smidiga...
Industri/Kontor/Lager - Burlöv - Arlöv - 2376 m2
Verkstadslokal optimal för lastbilar och tung fordonsservice med 12 markportar Nu finns möjligheten att etablera er verksamhet i en lokaloptmial förlastbilsverkstad, skadevagnsverkstad eller annan tung fordonsservice. Lokalen erbjuder de ytor...
Butik/Industri/Lager - Stockholm - Veddesta - 710 m2
Rymlig lokal med verkstad, showroom, lager och kontor i expansivt område Nu finns möjligheten att hyra en rymlig och flexibel lokal om totalt710 kvm- perfekt för företag som söker en...
Industri/Kontor/Lager - Göteborg - Backadal - 213 m2
Verkstads- och lagerlokal i ett av Göteborgs bästa industriområden Nu finns möjlighet att hyra en flexibel och lättillgängligkombilokal om totalt ca 213 kvmi ett av Göteborgs mest eftertraktade industriområden. Lokalen...
Butik/Kontor/Lager - Göteborg - Gamlestaden - 315 m2
Nu finns chansen att hyra en lokal om två plan med mycket bra skyltläge längs E45 i Gamlestaden! Den här flexibla ytan passar perfekt som både kontor och butik/showroom. På...
Kontor/Lager - Göteborg - 480 - 1245 m2
Nu har vi förmånen att presentera nyproducerade lokaler i Landvetter. Fastigheten är uppdelad i fack med inlastning via 4,5 meter höga markportar. Man kan ta ner väggar emellan om man...
Industri/Kontor/Lager - Göteborg - Ringön - 1955 m2
Nu kan vi erbjuda ett väldigt fint lager med tillhörande kontor. Till lagret finns det två markportar. Den största är 5 m hög och 5,5 m bred. Takhöjden är 5...
Kontor/Lager/Övrigt - Göteborg - Högsbo - 560 m2
Nu kan vi erbjuda en kombilokal om totalt 560 kvm i Högsbo/Västra Frölunda, med en låg hyra! Lagerdelen består utav ca 400 kvm låglager med tillhörande kontor/showroom om 160 kvm....
Kontor/Lager - Göteborg - Centrum - 700 - 1438 m2
Nu kan vi erbjuda en egen fastighet i Eklanda Park, med en total yta om 1438 kvm! Kombilokalen disponeras i form av plan 1 som består utav 540 kvm lager,...
Kontor/Lager/Övrigt - Göteborg - Gamlestaden - 3700 - 4700 m2
Välkommen till Marieholmsgatan 64, Göteborg. Alldeles intill E45 och beläget i industriområdet Marieholm erbjuds en lagerlokal om cirka 3700 kvadratmeter, varav cirka 200 kvadratmeter består av reception, kontor och omklädningsrum....
Industri/Kontor/Lager - Göteborg - Hisingen - 168 - 500 m2
Nu kan vi snart erbjuda lokaler i Säve som kan användas till mycket. Varje lokal är cirka 170 kvm. Det går att slå ihop tre lokaler för en total area...
Lager - Hunnebostrand - 340 - 1700 m2
Nu kan vi erbjuda en fin fastighet i strategiskt bra skyltläge precis intill väg 171 som leder till Hunnebostrand, Kungshamn/Smögen. Det finns möjlighet att hyra eller köpa hela fastigheten. Lokalen...
Kontor/Lager - Göteborg - 190 - 474 m2
Nu har vi glädjen att presentera en fin kombilokal i markplan där sittande hyresgäst önskar överlåta hyresavtalet. Lokalen består i dag av två separata hyresavtal vilket ger flexibel ytdelning: 190...
Lager - Skellefteå - 200 m2
Välkommen till en ljus och funktionell lagerlokal på andra våningen i en lättillgänglig byggnad på Sunnanå, Skellefteå. Med en yta på cirka 200 kvm erbjuder denna lokal en stor, öppen...
Kontor/Lager/Övrigt - Skellefteå - 690 - 3500 m2
Nu finns en unik möjlighet att hyra en mångsidig fastighet på 3500 m², perfekt belägen ett stenkast från centrala Skellefteå. Fastigheten erbjuder stora möjligheter för olika typer av verksamheter och...
Butik/Kontor/Lager - Gävle - 607 m2
Välkommen till Näringen och Förrådsgatan 7! Här finner ni en trivsam kontorslokal på strax över 600 kvm fördelat i två plan. På entréplan finns även ett lager med port. Intill...
Industri/Lager - Mora - 790 m2
Industrifastighet med ledig lokal om 790 kvm som passar perfekt för lager/logistik. Lagerytan är belägen på markplan och har 5 meter i takhöjd samt två portar för smidig in- och...
Kontor/Lager - Skellefteå - 437 m2
Nu finns en utmärkt möjlighet att skapa ert framtida kontor i vår fastighet på Lagergatan 1. Denna kontorslokal på 437 m² är belägen i souterängplan och erbjuder en bekväm och...
Industri/Kontor/Lager - Gävle - Bomhus - 722 m2
Nu finns möjlighet att hyra butikslokal i bästa skyltläge intill den vältrafikerade rondellen Södra Kungsvägen - Österbågen. Butikslokalen är belägen på entréplan med stora skyltfönster ut mot vägen vilket ger...
Industri/Kontor/Lager - Timrå - 500 - 900 m2
En flexibel industribyggnad i ett våningsplan med stora markytor.
Industri/Kontor/Lager - Umeå - Teg - 533 m2
Här kommer möjligheten för er som söker en lokal med cenrttralt läge på Östteg med både kontor, verkstadsytor och tillgång till inhägnad innergård. Lokalen är uppdelad med rymlig kontorsdel med...
Industri/Kontor/Lager - Umeå - Teg - 1 - 10000 m2
Vi kan ha lösningen! Centralt på Östtegs industriområde har vi möjlighet att erbjuda en attraktiv fastighet med stor potential och generös byggrätt som kan exploateras efter överenskommelse. Tomten är på...
Industri/Lager - Umeå - Ersboda - 529 m2
Rymlig lager- och butikslokal med bra läge på Ersboda. Lokalen är i ett plan med två portar och gångdörr. Lokalen domineras av öppna butiks- och lagerytor. För ytterligare information välkommen...
Butik/Industri/Lager - Gävle - 1150 m2
Nu finns möjlighet att hyra en lokal med utmärkt läge längs med Strömsbrovägen. Lokalen är anpassningsbar men lämpar sig bäst som butik och/eller lager. Entrén är placerad mellan Flügger Färg...
Industri/Kontor/Lager - Timrå - 1500 - 5660 m2
NP3 har förvärvat Permobils fastigheter i Timrå - ett perfekt tillfälle för företag som söker optimala arbetsutrymmen. Vi erbjuder moderna lokaler med hög standard, inklusive kontor, produktionsytor, lager och lastkaj....
Industri/Kontor/Lager - Timrå - 635 - 1263 m2
Lokalen är belägen i Timrå Industriområde med närhet till E4 norr om Sundsvall (Birsta). Den rymliga lokalen med stora öppna ytor och generös takhöjd gör den väl lämpad för användning...
Industri/Kontor/Lager - Umeå - Teg - 2020 m2
Centralt på Östtegs industriområde finns möjligheternas lokal som med sitt synliga och lättillgängliga läge lämpar sig väl som exempelvis butiks, produktion eller industrilokal. Till lokalen hör även fina verkstadsytor och...
Kontor/Lager - Umeå - Teg - 300 m2
Lokal med mycket bra och synligt läge längs Obbolavägen på väg mot flygplatsen. Lokalen som är på ca 300 kvm omfattar två portar varav en hög och en lägre port....
Industri/Kontor/Lager - Sundsvall - Gärde - 459 - 622 m2
Välkommen att hyra en lager- /industrilokal med tillhörande personalutrymmen om 459 kvm i det populära området Gärde precis intill E4 med närhet till både Birsta och Sundsvalls centrum. Möjlighet finns...
Industri/Lager - Sundsvall - Gärde - 488 - 810 m2
Välkommen att hyra en verkstadslokal i det populära området Gärde med bra skyltläge längs E4. I lokalen har det tidigare bedrivits verkstad av bilar/lastbilar och består av en stor öppen...
Industri/Kontor/Lager - Skellefteå - 126 m2
Välkomna till en funktionell och rymlig industrilokal på 126 m², belägen i det attraktiva området Hedensbyn. Lokalen består av: 106 m² lager/industridel med stor lagerport på baksidan för enkel lastning...