Larsfridsvägen 9

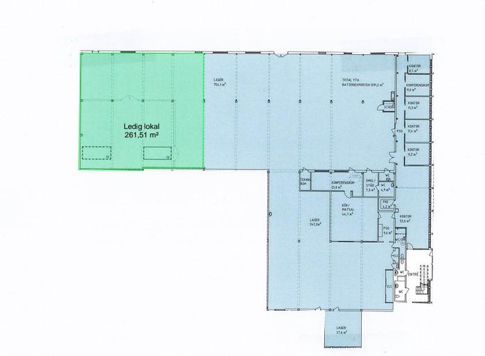
Lager, 261 m2, Halmstad

Hyra: Kontakta annonsören

Lagerlokal ledig på Larsfrid i Halmstad om 261 kvm

Här hittar du en smidig lagerlokal om 261 kvm på utmärkt läge på Larsfrid i Halmstad.

Kontakta oss för visning!

Omgivning

Företag i närheten:

Här hittar du bland annat Renta, Ramudden, Halmstad Färghus mfl

Parkeringsmöjligheter/garage:

P-platser finns runt fastigheten

Planlösning

Fastighetsbeteckning:

Flygaren 11

Kommunikationer

Smidig tillfart från Laholmsvägen och Larsfridsvägen

Service

Närservice:

Nära flera restauranger, Ica Maxi men också Hallarna med allt sitt utbud av service och handel

Övrigt

Övrigt:

Emilshus erbjuder lokalt baserad förvaltning. Vi finns alltid nära tillhands när det behövs och delar gärna med oss av vårt breda kunnande inom lokal- och fastighetsfrågor. Vi har lokal närvaro och engagemang för din verksamhet. Tillsammans hittar vi kreativa lösningar för att göra din arbetsplats så bra som möjligt. Du som kund är alltid i vårt fokus.

Uppvärmning:

Fjärrvärme

Kontraktlängd:

Långtidskontrakt

Kontrakttyp:

Förstahandskontrakt

Tillträde:

Enligt överenskommelse

Kontakta Annonsör

Ervin Mezei

Ervin Mezei