Gjutaregatan 18
Lager - Halmstad - Vilhelmsfält - 158 m2
Lagerlokal på bästa läge på Vilhelmsfält i Halmstad Här hittar du en perfekt lagerlokal på bästa läge i Halmstad. Här finns gott om andra företag på samma adress. En port...
Lager - Halmstad - Vilhelmsfält - 158 m2
Lagerlokal på bästa läge på Vilhelmsfält i Halmstad Här hittar du en perfekt lagerlokal på bästa läge i Halmstad. Här finns gott om andra företag på samma adress. En port...
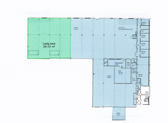
Lager - Halmstad - 261 m2
Lagerlokal ledig på Larsfrid i Halmstad om 261 kvm Här hittar du en smidig lagerlokal om 261 kvm på utmärkt läge på Larsfrid i Halmstad. Kontakta oss för visning!
Industri/Kontor/Lager - Halmstad - 150 - 2350 m2
Kontor med möjlighet till lager/verkstad på Flygstaden En möjlighet till att etablera en verksamhet som har behov av både kontor och lager/verkstad. Kontorsdelen ligger utmed kristinebergsvägen och har goda parkerings...
Industri/Kontor/Lager - Halmstad - 400 m2
Kontorslokaler med stor potential på andra våningen. På ett attraktivt läge utmed Kristinebergsvägen erbjuder vi ett kontor på våning 2. Bra med parkeringsplatser intill och utmed fastigheten. I närheten av...
Butik/Kontor/Lager - Halmstad - 432 m2
Fin butikslokal Fin butikslokal på Flygstaden. Bra skyltläge.
Industri/Kontor/Lager - Halmstad - 636 m2
Kombinerad lager- och kontorslokal med lasthus på bästa läge intill Laholmsvägen, med direkt anslutning till motorväg Stor industrifastighet på bästa läge i Halmstad med en ledig kombilokal om 636 kvm...
Industri/Kontor/Lager - Halmstad - 189 m2
Lättillgänglig lagerlokal med markport finns att hyra på Laholmsvägen Industri- och butiksfastighet med ledig lagerlokal om 189 kvm. Lokalen är belägen på markplan och har flera fönster som ger ett...
Industri/Kontor/Lager - Halmstad - 615 m2
Lager med egen markport och kontor på bästa logistikläge i Halmstad Nu finns möjlighet att hyra enfräsch och välplanerad lagerlokalmed kontor i ett strategiskt logistikläge i Halmstad. Lokalens fördelar: Totalyta:615...
Industri/Kontor/Lager - Halmstad - 1503 m2
Modern lagerlokal med 8 meters takhöjd, 7 lasthus och flexibla kontorsytor Nu finns möjlighet att hyra en renoverad och modern lagerlokal om totalt 1 503 kvm, strategiskt belägen i Larsfrid...
Industri/Kontor/Lager - Halmstad - 650 m2
Flexibel lager- och kontorslokal i fräscht skick - Strategiskt läge i Larsfrid, Halmstad Nu finns möjligheten att hyra enfunktionell och flexibel lokal om 650 kvmi mycket gott skick, renoverad 2018....
Lager - Halmstad - Sannarp - 103 m2
Ledig lagerlokal med delad markport Lättillgänglig och funktionell lagerlokal om 103 kvm i populära Sannarp industriområde. Lokalen passar perfekt för företag som söker en praktisk yta förförvaring eller enklare lagerverksamhet.Lokalen...
Butik/Kontor/Lager - Halmstad - 576 m2
Lokal för många användningsområden på Flygstaden. På Flygstaden finns en fin butiks/kontors lokal. Ytan ligger på bottenvåningen. Vi hittar en bra lösning för just ditt företag. Lokalen har två portar...
Industri/Kontor/Lager - Halmstad - 1600 - 4140 m2
Flexibla och prisvärda lagerytor som kan anpassas för just er verksamhet Här erbjuds flexibla lagerytor som kan anpassas efter behov, med möjlighet till korttidsavtal vid önskemål. Lokalen kan hyras i...
Kontor/Lager/Övrigt - Halmstad - 153 m2
Ljus och flexibel kontorslokal om 153 kvm - perfekt för mindre företag eller start-up Nu finns möjlighet att hyra en kontorslokal om 153 kvm, idealisk för det mindre företaget eller...
Industri/Kontor/Lager - Halmstad - 1503 - 7351 m2
Lediga lager- och terminalytor med höglager, 13 lasthus och flexibel utformning i optimalt logistikläge Nu finns möjlighet att hyra en stor och anpassningsbar lager/terminal- och kontorslokal iattraktiva Halmstad, strategiskt belägen...
Industri/Kontor/Lager - Halmstad - 519 m2
Kontorslokal i gott skick med fräscha faciliteter och tillhörande lageryta Trevlig fastighet med ledig kontorslokal inklusive lageryta om totalt 519 kvm. Lokalen är belägen på markplan, är utrustad med LED-belysning...
Industri/Kontor/Lager - Halmstad - Sannarp - 212 m2
Flexibel kontors- och lagerlokal med anpassningsmöjligheter i Sannarp Nu finns chansen att hyra en kontors- och lagerlokal på markplan om212 kvm, där ni har möjlighet att påverka utformningen för att...
Industri/Kontor/Lager - Halmstad - 5058 m2
Modernt höglager med showroom, lastkaj och kontorsdel i toppskick finns att hyra i Halmstad Perfekt för er som söker ett modernt höglager med förstklassiga kontorsytor och ett optimalt logistikläge. Denna...
Industri/Kontor/Lager - Halmstad - Sannarp - 510 m2
Lagerlokal med kontor och fulla faciliteter - strategiskt läge i Sannarp Nu finns möjlighet att hyra enfunktionell och lättillgänglig lagerlokal om 510 kvmpå markplan, inklusive en mindre kontorsdel.Lokalen har en...
Industri/Kontor/Lager - Halmstad - Vilhelmsfält - 386 m2
Riktigt fin verkstads/lager lokal som kan kombineras med kontor Fin verkstadslokal som nås via en port idag. Går att kombinera med kontor som nås från huvudentren till fastigheten. Funkar perfekt...
Industri/Kontor/Lager - Halmstad - 14580 m2
Effektiv logistikfastighet med lasthus, kontor och showroom -strategiskt läge intill E6 i Halmstad Här erbjuds en komplett lager- och logistikfastighet om totalt 14 580 kvm i utmärkt skick, med direktaccess...
Industri/Kontor/Lager - Halmstad - Sannarp - 912 m2
Lager- och kontorslokal i strategiskt läge - 912 kvm på markplan Lättillgänglig lokal om totalt 912 kvm i Sannarp industriområde, med ca 700 kvm lager och 212 kvm kontor. Lokalen...
Industri/Kontor/Lager - Halmstad - 540 m2
Modern och flexibel kontorslokal med tillhörande lager/verkstad och gott om parkeringsplatser på inhägnat område Nu finns möjligheten att hyra en ljus, modern och välplanerad kombilokal i toppskick! Med ca 440...
Industri/Lager/Övrigt - Halmstad - 304 m2
Lagerlokal med markport och utmärkt läge på Laholmsvägen Nu finns envälskött lagerlokalom304 kvmatt hyra i enindustri- och butiksfastighetmed lättillgängligt läge utmed Laholmsvägen - en av Halmstads mest trafikerade infartsleder. Lokalen...