Larsfridsvägen 14

Kontor, 430 m2, Halmstad

Hyra: Kontakta annonsören

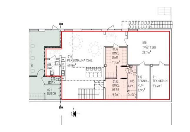
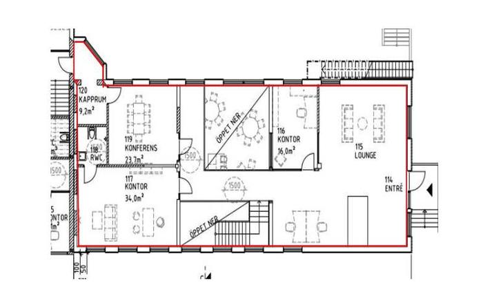
Läckert kontor med omklädningsrum och tvättrum

En otroligt läcker lokal utmed Larsfridsvägen, med direkt anslutning till södrainfarten och E6. Häftigt utforat kontor med öppna arbetsplatser som kombineras med kontorsrum och mötesrum. På bottenvåningen finns ännu en entre med ingång till omklädningsrum och tvättrum. På bottenvåningen hittar man också pentry mm.

Bokar gärna en visning, då lokalen måste upplevas på plats.

Planlösning

Fastighetsbeteckning:

fanan 12

Kommunikationer

Direkt anslutning på den nya södra infarten till Halmstad/E6

Övrigt

Tillträde:

Enligt överenskommelse

Kontakta Annonsör

Ervin Mezei

Ervin Mezei