Veddestavägen 25
Veddesta, Stockholm, 710 m2
Rymlig lokal med verkstad, showroom, lager och kontor i expansivt område Nu finns möjligheten att hyra en rymlig och flexibel...
Dokument
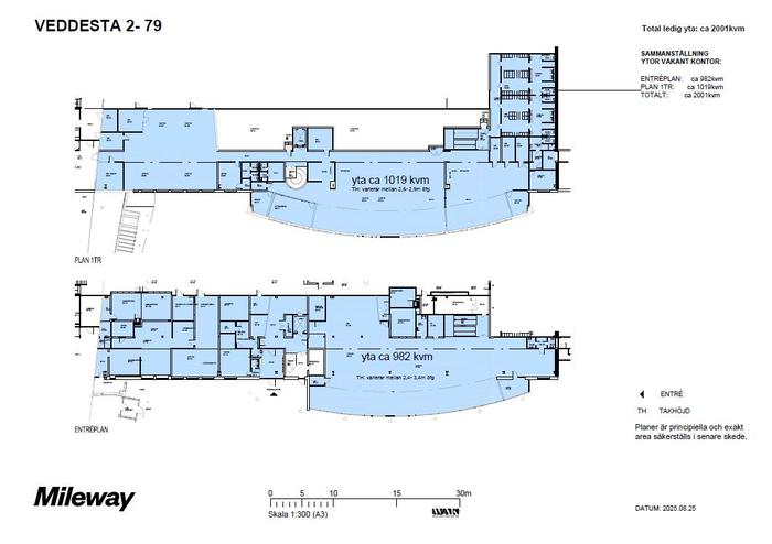
250825-Veddesta 2-79 - plan 1-2-A3.pdfKontor/Övrigt, 2001 m2, Stockholm, Veddesta
Hyra: Kontakta annonsören
Nu finns möjligheten att hyrakontorslokaler om totalt 2001 kvmfördelade på två våningsplan, belägna i en logistikfastighet med strategiskt läge. Lokalerna erbjuder stor potential och kananpassas efter hyresgästens specifika behov, vilket gör dem idealiska för olika typer av verksamheter.
Lokalbeskrivning
Strategiskt läge i Veddesta industriområde
Fastigheten är belägen i det expansivaVeddesta industriområdeiJärfälla, cirka 20 kilometer norr om Stockholm, meddirekt anslutning till E18. Området erbjuder en smidig logistisk placering för resor till Stockholm, Västerås och Uppsala.
Veddesta och Järfälla kommun är under stark utvecklingoch området präglas idag av en blandning av industrier, verksamheter och bostäder. I närheten finns ettstort serviceutbudi bådeBarkarby handelsområdeochJakobsbergs centrum.
Kommunikationer
Området har goda kollektivtrafikförbindelser med både pendeltåg och buss till centrala Stockholm och närliggande områden. I framtiden kommer även tunnelbanan att nå Veddesta, vilket ytterligare förbättrar tillgängligheten.
Varför välja denna lokal?
Kontakta oss idag för mer information eller för att boka en visning!
PostNord, UPS, Stena Recyckling AB, Swedol, Mekonomen och Beijer Byggmaterial
Parkeringsmöjligheter/garage:Förhyrda parkeringsplatser finns att tillgå
Vägbeskrivning:Direkt anslutning till E18
Veddesta 2:79
Byggår:1982
Våningsplan:1 av 2
Planlösning:Se planritning bland bilder/PDF.
Goda kollektivtrafikförbindelser med pendeltåg och buss till Veddesta och centrala Stockholm (på sikt även tunnelbana)
ed närhet till brett serviceutbud i Veddesta handelsplats, Barkarby handelsområde och Jakobsbergs centrum
3,4 m
Lokalen kan nås via:Trapphus med hiss
Hiss:Ja
Kontraktlängd:Förhandlingsbart
Kontrakttyp:Förstahandskontrakt
Tillträde:Omgående