Dokument

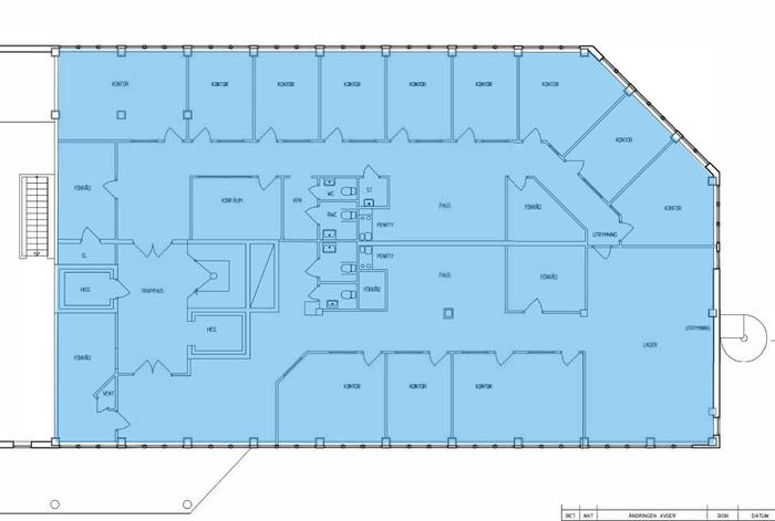
Veddesta 2-66_plan 2 vån 1 tr_Planritning

Girovägen 13

Kontor/Lager, 40 - 500 m2, Stockholm, Veddesta

Hyra: Kontakta annonsören

Representativa kontorslokaler i flexibel storlek - fri parkering ingår

Flexibla kontorsrum i modern kontorsbyggnad - från 40 till 500 kvm

Nu finns möjlighet att hyra kontorsrum i en ljus och trevlig kontorsmiljö på plan två i en representativ kontorsbyggnad med totalt sex våningar. Här erbjuds flexibla ytor från ca 40 kvm upp till 500 kvm (hela våningsplanet), anpassade för både små och större företag.

Lokalerna har en kontorsindelad planlösning med stora fönsterpartier som ger rikligt med dagsljus. Fulla faciliteter ingår såsom pentry, WC samt tillgång till gemensamma ytor. Lokalerna är anpassningsbara efter behov och kan delas av utifrån önskad storlek.

Fastigheten ligger inom ett inhägnat område som låses nattetid för ökad säkerhet. Fri parkering finns i direkt anslutning till byggnaden.

Veddesta industriområde ligger i Järfälla cirka 20 kilometer norr om centrala Stockholm med strategisk placering alldeles intill E18, vilket ger en smidig access till såväl Stockholm som Västerås och Uppsala. Järfälla kommun är en av de mest expansiva i Stockholmsområdet och stor utveckling väntas av detta område som idag präglas av en stor variation av verksamheter, industrier och bostäder. Stort serviceutbud finns inom nära räckhåll i Barkarby handelsområde och Jakobsbergs centrum. Det finns goda kollektivtrafikförbindelser med pendeltåg och buss till Veddesta och centrala Stockholm (på sikt även tunnelbana).

Omgivning

Företag i närheten:

Stena Recyckling AB, Swedol, Mekonomen, Beijer Byggmaterial och NetOnNet

Parkeringsmöjligheter/garage:

Förhyrd parkering finns att tillgå

Vägbeskrivning:

Direkt anslutning till E18

Planlösning

Fastighetsbeteckning:

Veddesta 2:66

Byggår:

1964

Våningsplan:

1 av 5

Planlösning:

Se planritning bland bilder.

Kommunikationer

Goda kollektivtrafikförbindelser med pendeltåg och buss till Veddesta och centrala Stockholm (på sikt även tunnelbana)

Service

Närservice:

Med närhet till brett serviceutbud i Barkarby handelsområde och Jakobsbergs centrum

Övrigt

Lokalen kan nås via:

Trapphus med personhiss samt lasthiss (max 850 kg)

Hiss:

Ja

Kontraktlängd:

Förhandlingsbart

Kontrakttyp:

Förstahandskontrakt

Tillträde:

Omgående

Kontakta Annonsör

Sanna Backenroth

Sanna Backenroth