Veddestavägen 25
Veddesta, Stockholm, 710 m2
Rymlig lokal med verkstad, showroom, lager och kontor i expansivt område Nu finns möjligheten att hyra en rymlig och flexibel...
Dokument
Skälby 3-1418_Hus G, Plan 1.pdfIndustri/Kontor/Lager, 83 - 217 m2, Stockholm, Veddesta
Hyra: Kontakta annonsören
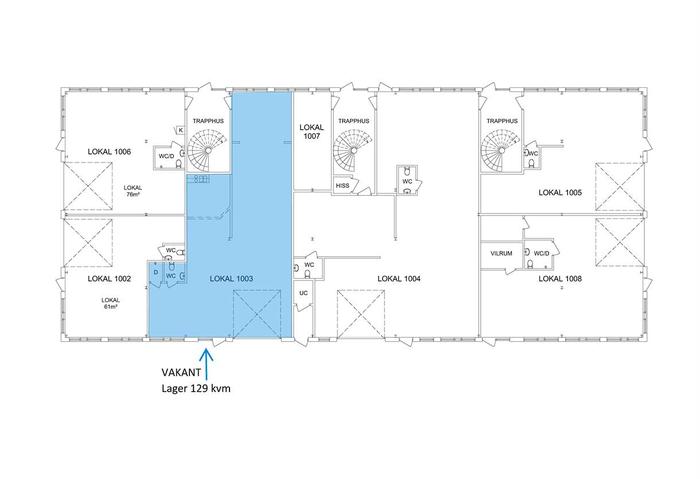
Ledig kombilokal om totalt 217 kvm, bestående av 129 kvm lager på markplan samt mellan 83-138 kvm kontor på plan två.
Lagerlokalen har en öppen planlösning, cirka 2.8 meter i takhöjd och en egen markport för smidig in- och utlastning. Kontorslokalen belägen en trappa upp erbjuder separata kontorsrum i olika storlekar, då lokalen är i behov av renovering finns det goda möjligheter att göra anpassningar enligt hyresgästens önskemål. Faciliteter i form av kök/pentry, dusch och WC finns på båda våningsplanen.
Byggnaden ligger på delvis inhägnat område och det finns fri parkering i anslutning till lokalerna. Inom gångavstånd från fastigheten finns trevliga grönområden och Veddestaspårets utegym.
Järfälla ligger cirka 20 kilometer norr om centrala Stockholm med strategisk placering alldeles intill E18, vilket ger en smidig access till såväl Stockholm som Västerås och Uppsala. Järfälla kommun är en av de mest expansiva i Stockholmsområdet och stor utveckling väntas av detta område som idag präglas av en stor variation av verksamheter, industrier och bostäder. Stort serviceutbud finns inom nära räckhåll i Barkarby handelsområde, endast 3 kilometer bort, och i Jakobsbergs centrum. Det finns goda kollektivtrafikförbindelser med pendeltåg och buss till Veddesta och centrala Stockholm (på sikt även tunnelbana).
Grönområden och Veddestaspårets utegym finns i närheten
Företag i närheten:Stockholm Quality Outlet, Postnord, MediaMarkt, Bauhaus, Biltema, Byggmax och IKEA
Parkeringsmöjligheter/garage:Utomhusparkering med möjlig besöksparkering
Vägbeskrivning:Direkt anslutning till E18
Skälby 3:1418
Byggår:1986
Planlösning:Se planlösning bland bilder eller ladda ned PDF.
Bussar trafikerar till Vällingby, Barkarby handelsplats, Akalla och Jakobsbergs Station, E18 och blåa linjens förlängning, belägen nära pendeltågsstation ”Barkarby” med kort promenadsträcka till fastigheten. E4 Förbifart Stockholm öppnar på sikt och binder samman E18 och E4 vid Barkarby och ger restid till Kungens Kurva på 15 minuter. Pendeltåg trafikerar till Odenplan på 15 minuter och Stockholm City 18 minuter. Tunnelbana öppnar inom några år, vilket förbinder Barkarby med Kista samt i förlängningen Nacka. 17 minuter bort finns Bromma flygplats och 27 minuter bort finns Arlanda flygplats.
Ett av Sveriges starkaste handelsområden Barkarby finns inom fem minuters räckhåll med bekvämligheter som Apotek, matbutik, hemelektronikutbud, Maxi ICA Stormarknad Barkarby och närhet till Viksjö golfklubb
2,8 m
Lokalen kan nås via:Egen markport, trapphus
Kontraktlängd:Förhandlingsbart
Kontrakttyp:Förstahandskontrakt
Tillträde:Efter överenskommelse