Dokument

Planritning_Veddesta 2:50_Unit 3.pdf

Veddestavägen 25

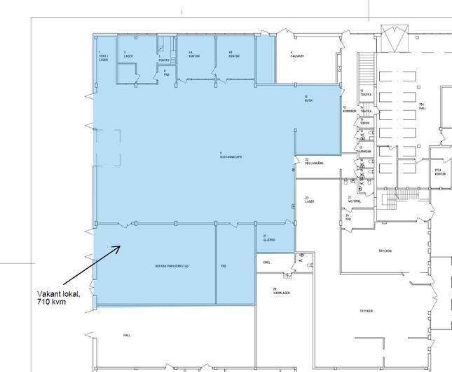
Butik/Industri/Lager, 710 m2, Stockholm, Veddesta

Hyra: Kontakta annonsören

Rymlig lokal med verkstad, showroom, lager och kontor i expansivt område

Nu finns möjligheten att hyra en rymlig och flexibel lokal om totalt710 kvm- perfekt för företag som söker en kombination avverkstad, lager, showroom och kontori ett expansivt och strategiskt beläget industriområde.

Kombinationslösning:


  • Stor verkstadsdel om250 kvmmed generösa ytor för produktion eller service.


  • 410 kvm showroom/lagermed gott om plats för både lagerhållning och kundpresentation.


  • 50 kvm kontormed ljusa och moderna arbetsplatser.


Moderna faciliteter:


  • Lokalen har3 markportarför smidig in- och utlastning.


  • 5 meters takhöjdger gott om volym för verksamheter med behov av höjd och rymd.


  • Utrustad medWC, pentry och omklädningsrumför en komplett och funktionell arbetsmiljö.


  • Fri parkering direkt utanför lokalen.


Generös markyta:


  • 2200 kvm mark- och uppställningsytamed goda möjligheter för fordon, materialhantering eller utomhusförvaring.


Strategiskt läge i Veddesta, Järfälla

Utmärkt skyltläge:Lokalens placering syns väl från närliggande vägar och E18.
Lättillgängligt:Enkel tillgång till området med smidiga transportmöjligheter.
Expansivt område:Veddesta industriområde i Järfälla är en del av ett snabbt växande område med en dynamisk mix av industrier, verksamheter och bostäder.

Nära till service och kollektivtrafik

Serviceutbud:Endast ett stenkast från Barkarby handelsområde och Jakobsbergs centrum med ett stort utbud av butiker, restauranger och service.
Kollektivtrafik:Goda förbindelser med pendeltåg och buss till både Veddesta och centrala Stockholm. I framtiden kommer även tunnelbanan att ansluta området, vilket ytterligare stärker läget.

Välkommen att kontakta oss för mer information eller för att boka en visning av denna unika lokal!

Omgivning

Företag i närheten:

Renta Järfälla, Swedol, Mabi hyrbilar, Beijer Byggmaterial och NetOnNet

Parkeringsmöjligheter/garage:

2200 kvm uppställningsyta

Vägbeskrivning:

Direkt anslutning till E18

Planlösning

Fastighetsbeteckning:

Veddesta 2:50

Byggår:

1964

Renoveringsår:

2019

Våningsplan:

1 av 2

Planlösning:

Se bilder/PDF.

Kommunikationer

Goda kollektivtrafikförbindelser med pendeltåg och buss till Veddesta och centrala Stockholm (på sikt även tunnelbana)

Service

Närservice:

Med närhet till brett serviceutbud i Barkaby handelsområde och Jakobsbergs centrum

Övrigt

Takhöjd:

5 m

Lokalen kan nås via:

Tre markportar + egen entré

Kontraktlängd:

Förhandlingsbart

Kontrakttyp:

Förstahandskontrakt

Tillträde:

Enligt överenskommelse

Kontakta Annonsör

Nawar Edward

Nawar Edward