Larsfridsvägen 9

Kontor, 145 m2, Halmstad

Hyra: Kontakta annonsören

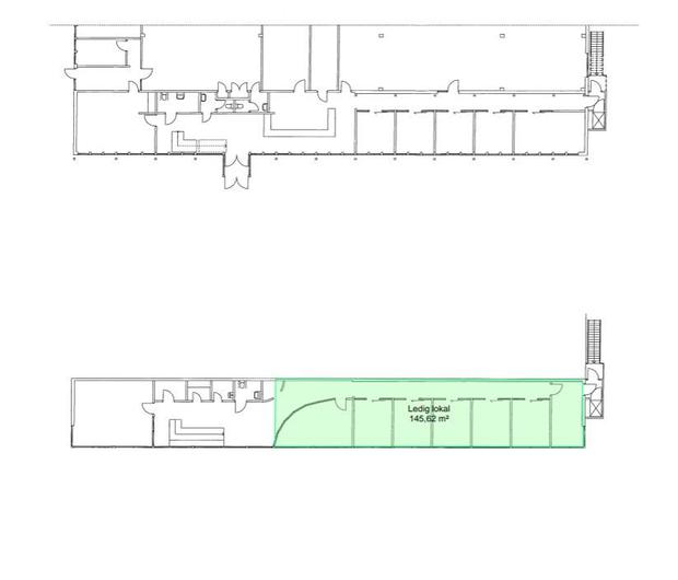
Smidig kontorslokal på plan 2 om 145 kvm på Larsfridsvägen i Halmstad

Här hittar du en smidig kontorlokal om 145 kvm, flera kontorsrum i fil. Smidigt läge med närhet till flera andra företag. 

Kontakta oss för visning.

Omgivning

Företag i närheten:

Gott om företag i området, tex. Ramudden, Renta, Elajo, Halmstad Färghus mfl.

Parkeringsmöjligheter/garage:

P platser framför byggnaden

Skyltläge:

Mycket bra skyltläge utmed Larsfridsvägen

Planlösning

Fastighetsbeteckning:

Flygaren 11

Kommunikationer

Nära Laholmsvägen

Service

Närservice:

Här har du nära till flera restauranger i området, samt Ica Maxi, men även nära till Hallarna med allt sitt utbud av service och handel.

Övrigt

Övrigt:

Emilshus erbjuder lokalt baserad förvaltning. Vi finns alltid nära tillhands när det behövs och delar gärna med oss av vårt breda kunnande inom lokal- och fastighetsfrågor. Vi har lokal närvaro och engagemang för din verksamhet. Tillsammans hittar vi kreativa lösningar för att göra din arbetsplats så bra som möjligt. Du som kund är alltid i vårt fokus.

Uppvärmning:

Fjärrvärme

Kontraktlängd:

Långtidskontrakt

Kontrakttyp:

Förstahandskontrakt

Tillträde:

Enligt överenskommelse

I hyran ingår:

Värme

Kontakta Annonsör

Ervin Mezei

Ervin Mezei