Girovägen 13
Veddesta, Stockholm, 181 m2
Praktisk kontorslokal med hissar och bra tillgänglighet i Järfälla I denna kontorsfastighet finns nu en trevlig lokal ledig på plan...
Dokument
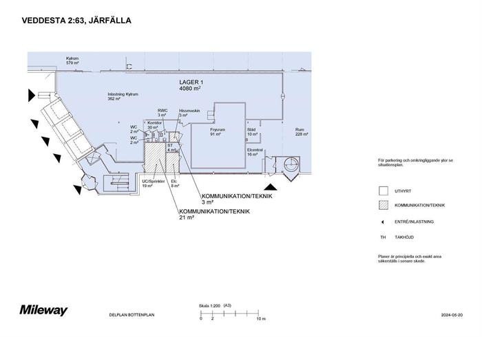
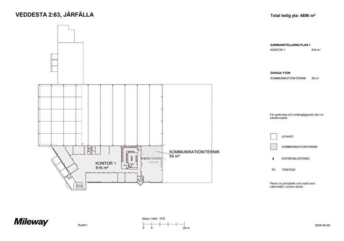
Planlösning - Mileway - Veddesta 2-63 Järfälla.pdfIndustri/Kontor/Lager, 4896 m2, Stockholm, Veddesta
Hyra: Kontakta annonsören
Nu har ni möjlighet att hyra en egen lagerbyggnad i mycket gott skick, perfekt för aktörer inomlivsmedel och dagligvaruhandel. Fastigheten om4 896 kvm, inklusive kontorsytor, erbjuder bådekyl- och frysrum, flera lastportar samt en stor inhägnadmarkyta om ca 4 000 kvmsom kan användas för uppställning.
Lokalens höjdpunkter:
Lagerytor:
Kontorsytor:
Exteriör och markyta:
Strategiskt läge i Veddesta industriområde
Fastigheten är belägen i Veddesta industriområde, Järfälla, cirka20 kilometer norr om Stockholm, med en strategisk placering intillE18. Området erbjuder enkel tillgång till Stockholm, Västerås och Uppsala, vilket gör det till en optimal knutpunkt för logistik och distribution.
Service och kommunikationer:
Sammanfattning:
Med sitt strategiska läge, moderna faciliteter och anpassade lagerytor lämpar sig denna fastighet utmärkt för aktörer inom livsmedel, logistik eller liknande verksamheter.
Välkomna att kontakta oss för mer information och visning!
Stena Recyckling AB, Swedol, Mekonomen, Beijer Byggmaterial och NetOnNet
Parkeringsmöjligheter/garage:Fri parkering
Vägbeskrivning:Direkt anslutning till E18
Veddesta 2:63
Byggår:1987
Planlösning:Se planritning bland bilder/ladda ned PDF.
Goda kollektivtrafikförbindelser med pendeltåg och buss till Veddesta och centrala Stockholm (på sikt även tunnelbana)
Med närhet till brett serviceutbud i Barkarby handelsområde och Jakobsbergs centrum. Komethallen gym, padelhall samt Friskis & Svettis finns inom gångavstånd från fastigheten
6,5 m
Lokalen kan nås via:Entré via grindar, 6 dockningsportar + 1 markport
Hiss:Ja
Kontraktlängd:Förhandlingsbart
Kontrakttyp:Förstahandskontrakt
Tillträde:Omgående