Fernissagatan 2
Butik/Kontor - Malmö - Limhamn-Bunkeflo - 88 m2
Ljusa och moderna lokaler på Fernissagatan 2 i Limhamn. Nu har du möjlighet att hyra en modern och ljus lokal på ca 88 kvm på Fernissagatan 2 i Limhamn. Lokalen...
Butik/Kontor - Malmö - Limhamn-Bunkeflo - 88 m2
Ljusa och moderna lokaler på Fernissagatan 2 i Limhamn. Nu har du möjlighet att hyra en modern och ljus lokal på ca 88 kvm på Fernissagatan 2 i Limhamn. Lokalen...
Butik - Hässleholm - 250 m2
Sätt din verksamhet i centrum - Lokal på A vid Stortorget i Hässleholm Ta chansen att etablera dig på Hässleholms mest attraktiva adress, precis vid Stortorget! Här erbjuds flexibla och...
Butik/Kontor - Staffanstorp - 184 m2
Lokal på bra läge mitt i Staffanstorp! Nu finns möjligheten att hyra en ljus och rymlig lokal om 184 kvm i centrala Staffanstorp på Torget 5. Lokalen har stora skyltfönster...
Butik - Staffanstorp - 150 m2
Restauranglokal på utmärkt exponeringsläge! Nu finns möjligheten att ta över en välplanerad och inbjudande restauranglokal på ca 150 kvm, perfekt för dig som vill etablera eller expandera din verksamhet. Lokalen...
Butik/Kontor - Helsingborg - 116 m2
Ljus och modern kontorslokal i markplan - Pollettgatan 10, Helsingborg Nu finns möjligheten att etablera ditt företag i en mycket representativ och trivsam kontorslokal om ca 116 kvm på attraktivt...
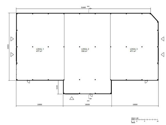
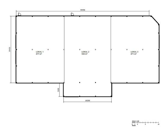
Butik - Lund - 520 m2
Utmärkta butiksytor på Novalund-området - Skånes bästa handelsplats? Nu finns äntligen möjlighet att öppna butik på handelsområdet vid Novalund. I samma byggnad som Elon och med delad entré finns här...
Butik/Industri/Kontor - Malmö - Hamnen - övrigt - 635 m2
Möjlighet att förvärva en ytterst attraktiv och bra belägen fastighet som aldrig tidigare har varit ute på marknaden, ett av Malmös attraktivaste lägen. Nu står den redo för nästa användare...
Butik - Lund - 100 m2
Butikslokal med bra skyltläge mitt i Lund! Nu finns möjligheten att hyra en charmig butikslokal om ca 100 kvm, perfekt för den som vill driva en butik med bra skyltläge....
Butik - Göteborg - Centrum - 47 m2
Välplanerad butikslokal om ca 47 kvm med effektiv yta och goda exponeringsmöjligheter. Lokalen passar utmärkt för mindre butik, showroom eller serviceverksamhet. Här erbjuds en öppen och lättmöblerad yta som ger...
Butik/Kontor - Kungsbacka - 55 - 107 m2
Denna nybyggda butikslokal om 107 kvm är belägen i attraktiva Lindens Park i Kungsbacka och erbjuder mycket goda förutsättningar för olika typer av verksamheter. Lokalen har en modern och flexibel...
Butik - Göteborg - Centrum - 116 m2
Välplanerad butikslokal med ett attraktivt läge vid Vasaplatsen. Lokalen erbjuder stora och fina skyltfönster som ger mycket god exponering mot gatan och ett generöst ljusinsläpp. Entrén öppnar upp mot en...
Butik - Göteborg - Centrum - 75 m2
Butikslokal om 75 kvm med toppläge i Nordstan Nu finns möjlighet att hyra en attraktiv butikslokal om 75 kvm i populära Nordstan. Lokalen har ett mycket bra läge med stark...
Butik - Göteborg - Centrum - 210 m2
Välkommen till Friggagatan - ett attraktivt läge intill Odinsplatsen! Här erbjuds en butikslokal om 200 kvm med stora fönsterpartier och utmärkt skyltläge som ger bästa möjliga exponering för din verksamhet....
Butik/Kontor/Lager - Göteborg - Gamlestaden - 230 m2
Butik med otroligt ljusinsläpp och bra fönsterläge mot Marieholmsleden. Precis utanför lokalen finns det ett flertal parkeringar så att man enkelt kan hitta hit med bil. Lokalen kan nyttjas som...
Butik/Kontor/Lager - Göteborg - Gamlestaden - 315 m2
Nu finns chansen att hyra en lokal om två plan med mycket bra skyltläge längs E45 i Gamlestaden! Den här flexibla ytan passar perfekt som både kontor och butik/showroom. På...
Butik/Kontor/Övrigt - Kungälv - 149 m2
Upptäck Ytterby Park - nyproducerade lokaler med ett fantastiskt skyltläge vid Marstrandsvägen. Vi söker aktörer inom hälsa och vård. Här får du moderna lokaler i ett växande område med närhet...
Butik - Lysekil - 450 m2
På Drottninggatan finns nu möjligheten att ta över en butikslokal som tidigare varit en livsmedelsaffär. Lokalen har automatiska skjutdörrar in från gatan. Lokalen lämpar sig för all form av handel....
Butik/Kontor - Lysekil - 220 - 460 m2
Lokal som är passar som butik, showroom eller kontor. Två lokaler kan bli en och då får vi en yta om 460kvm. Nästa hyresgäst kommer att få bestämma mycket då...
Butik - Lysekil - 250 - 617 m2
Här finns en möjlighet att hyra en fantastisk butikslokal på Drottninggatan i Lysekil. Det kan också finnas en möjlighet att ta över den befintliga verksamheten. Lokalen är också delbar om...
Butik/Restaurang & café - Kungsbacka - Centrum - 50 - 300 m2
Välkommen till Lindens park, strax söder om Kungsbacka centrum. Beläget mellan Gymnasiegatan och Lindens gata har det nu utvecklats tre bostadskvarter med kommersiella ytor i bottenplan. Här förmedlar vi totalt...
Butik - Göteborg - Majorna - 100 - 250 m2
Välkommen till Lotsgatan 11, Göteborg. Majorna är ett område som ligger Göteborgarna varmt om hjärtat. Utöver de äldre fastigheternas charm och närhet till grönska är det dessutom ett populärt område...
Butik/Industri/Kontor - Stockholm - 2621 m2
Modern industri & lagerfastighet med verkstad, tvätthallar och ca 4 700 kvm asfalterad yta Beskrivning Nu finns möjlighet att hyra en komplett och mycket flexibel industri-/logistikanläggning i attraktiva Skällsta industriområde...
Butik/Kontor - Tyresö - Bollmora - 209 - 418 m2
Lokal för Butik/Showroom eller annan publik verksamhet i direkt anslutning till Tyresö Centrum BESKRIVNING Nu finns möjligheten att etablera din verksamhet i en ljus och rymlig lokal på Dalgränd 10,...
Butik/Kontor/Lager - Stockholm - 1024 m2
Flexibel lokal med stora möjligheter mitt i Vällingby Centrum BESKRIVNING Nu finns chansen att etablera din verksamhet i en rymlig och flexibel lokal om hela 1 024 m² på plan...
Butik/Kontor - Stockholm - Centrum - 915 m2
Butik, kontor och spektakulärt bankvalv - allt i en och samma lokal BESKRIVNING Mitt i hjärtat av Vällingby centrum erbjuds nu en unik och karaktärsfull lokal i tre plan -...
Butik/Kontor/Restaurang & café - Stockholm - 200 m2
Superfin nyrenoverad lokal i hjärtat av Tumba Superfin nyrenoverad lokal i hjärtat av Tumba BESKRIVNING Nu har du chans att hyra en lokal på 200 kvm på Olvonvägen 8 där...
Butik/Industri/Kontor - Stockholm - 2107 m2
Modern lager/industri & kontorsfastighet med uppställningsyta Beskrivning Nu erbjuds möjlighet att hyra moderna och representativa lokaler i attraktivt läge i Älta, Nacka. Lokalerna passar mycket väl för verksamheter inom entreprenad,...
Butik - Stockholm - 715 m2
Asfalterad uppställningsyta om ca 715 kvm - inhägnad fastighet Beskrivning Nu erbjuds möjlighet att hyra ca 715 kvm asfalterad uppställningsyta i attraktivt läge i Älta industriområde, Nacka. Ytan ligger inom...
Butik - Tyresö - 715 m2
Asfalterad uppställningsyta om ca 715 kvm - inhägnad fastighet Beskrivning Nu erbjuds möjlighet att hyra ca 715 kvm asfalterad uppställningsyta i attraktivt läge i Älta industriområde, Nacka. Ytan ligger inom...
Butik/Industri/Kontor - Tyresö - 2107 m2
Modern lager/industri & kontorsfastighet med uppställningsyta Beskrivning Nu erbjuds möjlighet att hyra moderna och representativa lokaler i attraktivt läge i Älta, Nacka. Lokalerna passar mycket väl för verksamheter inom entreprenad,...
Butik/Kontor/Övrigt - Stockholm - 54 m2
Lokal i hörnläge - kan hyras som bostad eller verksamhet BESKRIVNING Adress: Sjöfrökensväg 8, Botkyrka Område:Slagsta Strand Area:ca 54 kvm Hyra: 13806kr/ månad vid företagsuthyrning 11045 kr/månad (Moms tillkommer vid...
Butik/Kontor/Övrigt - Stockholm - 38 m2
Lokal i hörnläge - kan hyras som bostad eller verksamhet BESKRIVNING Adress: Sjöfrökensväg 10, Botkyrka Område:Slagsta Strand Area:ca 38 kvm Hyra: 10808kr/ månad vid företagsuthyrning 8646 kr/månad (Moms tillkommer vid...
Butik/Industri/Kontor - Stockholm - Handen - 605 m2
En superfin lokal i hjärtat av Haninge som passar till Butik, Lager, Kontor eller Tillverkning Beskrivning I Prismahuset finns denna superfina butikslokal. Lokalen är i jättefint skick och den passar...
Butik/Kontor - Stockholm - 1500 m2
En Kommersiell fastighet i hjärtat av Tumba En Kommersiell fastighet i hjärtat av Tumba BESKRIVNING Nu finns möjlighet att förvärva denna kassaflödesstarka kommersiella fastighet i hjärtat av Tumba. Fastigheten ligger...
Butik/Kontor/Lager - Stockholm - Handen - 510 m2
I hjärtat av Haninge finns denna perfekta lokal för butiksverksamhet Beskrivning I Prismahuset finns denna lokal som är perfekt för butiksverksamhet. Lokalen har ett jättebra gavelläge i Bv och den...
Butik/Industri/Lager - Stockholm - 185 m2
Flexibel lokal med port - lager, logistik & kontor i Älta industriområde BESKRIVNING Nu finns chansen att hyra en mycket funktionell och flexibel lokal i attraktiva Älta industriområde - perfekt...
Butik/Industri/Lager - Stockholm - 571 m2
Industrilokal med generösa uppställningsmöjligheter BESKRIVNING Flexibel industrifastighet med stora ytor och generösa uppställningsmöjligheter Nu finns möjlighet att hyra en välplanerad industrifastighet - perfekt för verksamheter inom industri, lager eller verkstad....
Butik/Kontor - Stockholm - Stadshagen - 540 m2
Modern vårdlokal med attraktivt läge - ett stenkast från S:t Görans sjukhus BESKRIVNING Nu finns möjlighet att hyra en mycket fräsch vårdlokal i en renodlad vårdfastighet, belägen endast ett stenkast...
Butik/Industri/Kontor - Stockholm - 954 m2
Industrilokal med tillhörande kontor i egen fastighet med generösa uppställningsmöjligheter BESKRIVNING Flexibel industrifastighet med stora ytor och generösa uppställningsmöjligheter Nu finns möjlighet att hyra en välplanerad industrifastighet med tillhörande kontor...
Butik/Kontor - Stockholm - Östermalms Stadsdelsområde - 95 m2
På en av Stockholms mest eftertraktade adresser, Karlavägen 70, erbjuds nu en sällsynt möjlighet! BESKRIVNING Om totalt 95 kvadratmeter disponeras ytan över två generösa rum i nästintill identisk storlek -...
Att hitta rätt butikslokal är en avgörande del i att driva en framgångsrik verksamhet. Oavsett om du är en etablerad aktör inom detaljhandeln eller står inför att öppna din allra första butik, är Lokalnytt.se din trygga partner när du vill hyra butikslokal någonstans i Sverige.
På Lokalnytt.se samlar vi ett av Sveriges största utbud av lediga butiker, med fokus på attraktiva, kommersiellt starka lägen i både storstäder och mindre orter. Här hittar du allt från butikslokaler på vältrafikerade shoppinggator till moderna ytor i köpcentrum och handelsområden. Våra lokaler finns i hela landet – från citykärnan i Stockholm till trendiga kvarter i Malmö och expansiva områden i Göteborg, samt i flera andra svenska städer med tillväxt och potential.
När du ska hyra butikslokal är det viktigt att snabbt kunna jämföra alternativ baserat på din verksamhets behov. Med vår användarvänliga plattform kan du filtrera sökresultaten utifrån läge, lokalstorlek, hyresnivå och lokaltyp. Vi gör det enkelt att hitta just den lediga butik som ger dig bäst förutsättningar att nå din målgrupp och skapa en attraktiv köpupplevelse.
Vi samarbetar med fastighetsägare över hela Sverige och uppdaterar dagligen vårt utbud med nya butikslokaler. Hos oss får du tillgång till aktuell information, tydliga lokalbeskrivningar och kontaktuppgifter till fastighetsägare eller uthyrare – allt samlat på ett ställe.
Oavsett om du vill öppna ett café i ett charmigt gatuhörn, en modebutik i ett populärt köpcentrum eller en konceptbutik i ett kreativt område, så har vi lösningarna för dig.