Dokument

Rosersberg 11-82_Planritning_Plan 1.pdf
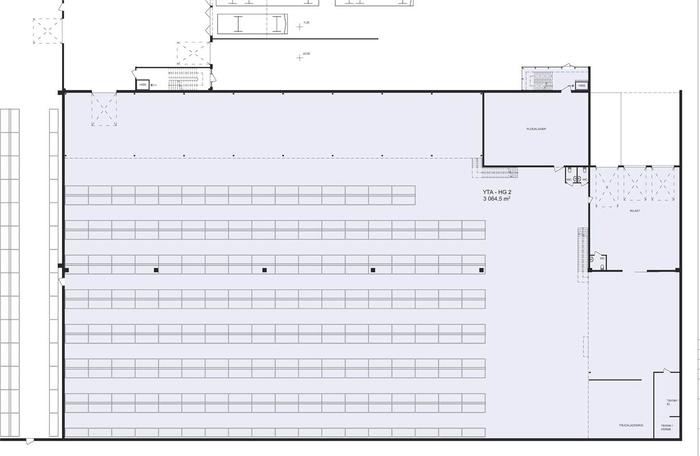
Rosersberg 11-82_Planritning_Plan 2.pdf

Stålgatan 11A

Industri/Kontor/Lager, 4060 m2, Stockholm

Hyra: Kontakta annonsören

Modern lager- och logistiklokal med flexibla ytor och optimalt läge

Nu finns möjlighet att hyra en välskött lagerlokal om totalt 4 060 kvm, inklusive 457 kvm kontor, i en modern byggnad från 2007.

Lagerdelen:


  • Markplan:3 065 kvm med takhöjd upp till 8 meter.

  • Smidig hantering via två lasthus och en markport.

  • Entresol:538 kvm med takhöjd 3,7 meter - perfekt för extra lagring eller verksamhetsanpassning.

Kontorsytor och faciliteter:


  • Funktionella kontorsutrymmen med tillgång till matsal, pentry, omklädningsrum, bastu, dusch, WC och RWC.

  • Modern standard och gott om plats för personal.

Fastigheten:


  • Inhägnat område med stor, asfalterad gårdsyta och goda parkeringsmöjligheter.

  • Elkapacitet på 125 A som möjliggör olika typer av verksamheter.

Välkommen till en fastighet som kombinerar funktion och flexibilitet för både lager och kontor - ett utmärkt val för verksamheter med höga krav på logistik och personalutrymmen.

Optimalt läge: 

Stockholm Nord Logistikcenter är centralt beläget i Rosersberg, endast 30 km norr om centrala Stockholm och strax söder om Arlanda flygplats. Dess närhet till E4, den viktigaste transportlänken till och från Stockholm, gör den till en idealisk bas för ditt logistikföretag. Lunchrestauranger och serviceutbud finns lättillgängligt i närområdet. Buss- och tågförbindelser till Stockholm och dess omgivningar finns tillgängliga, vilket gör pendlingen smidig för alla medarbetare.

Omgivning

Omgivning/natur:

Stockholm Nord Logistikcenter är centralt beläget i Rosersberg, endast 30 kilometer norr om centrala Stockholm och strax söder om Arlanda flygplats. Dess närhet till E4, den viktigaste transportlänken till och från Stockholm, gör den till en idealisk bas för ditt logistikföretag. Lunchrestauranger och serviceutbud finns lättillgängligt i närområdet. Buss- och tågförbindelser till Stockholm och dess omgivningar finns tillgängliga, vilket gör pendlingen smidig för alla medarbetare.

Företag i närheten:

DHL, PostNord, Optimera, Sellpy, Lidl och Stena Recycling AB

Parkeringsmöjligheter/garage:

Goda parkeringsmöjligheter

Vägbeskrivning:

Direkt anslutning till E4

Planlösning

Fastighetsbeteckning:

Rosersberg 11:82

Byggår:

2007

Våningsplan:

1 av 2

Planlösning:

Se bifogad PDF-ritning eller bland bilder.

Kommunikationer

Goda kollektivtrafikförbindelser med buss och tåg till Stockholm med omnejd

Service

Närservice:

Enklare serviceutbud med lunchrestauranger finns i närområdet

Övrigt

Takhöjd:

8,5 m

Lokalen kan nås via:

2 lasthus och 1 markport

Hiss:

Ja

Kontraktlängd:

Förhandlingsbart

Kontrakttyp:

Förstahandskontrakt

Tillträde:

Omgående

Kontakta Annonsör

Nathalie Håkansson

Nathalie Håkansson