Dokument

Ritning_Ringpärmen_2_pdf

Bergkällavägen 28

Industri/Kontor/Lager, 682 - 2759 m2, Stockholm

Hyra: Kontakta annonsören

Ny toppmodern lagerbyggnad i Bredden - inflyttningsklar 2027

En helt ny, toppmodern lagerfastighet planeras att stå klar i Bredden under 2027. Med en total yta på cirka 2 759 kvm erbjuder byggnaden högsta flexibilitet och kan anpassas för upp till fyra hyresgäster, med lokaler från 682 kvm upp till hela 2 759 kvm. Redan från start har ni möjlighet att påverka utformningen och skapa en lokal som passar just er verksamhet perfekt.

Höjdpunkter och fördelar:


  • Flexibla ytor:Anpassningsbara enheter från 682 till 2 759 kvm.

  • Generös takhöjd:8,5 meter till balk, idealiskt för effektiv lagerhantering.

  • Effektiva lastningslösningar:En markport per lokal för smidig logistik.

  • Robust golvbärighet:5 ton/kvm för tunga verksamheter.

  • Skräddarsydda lösningar:Möjlighet att installera oljeavskiljare vid behov.

  • Smart design:Kontorsytor och entresolplan optimerade för både lagring och personal.

  • Energibesparing:LED-belysning för låg driftskostnad.

  • Goda parkeringsmöjligheter:Tillgängligt för både personal och kunder.

Byggnaden certifieras enligtBREEAM Very Good, vilket säkerställer en energieffektiv och hållbar fastighet som möter moderna krav.

Strategiskt läge i Bredden

Bredden, tidigare känt som InfraCity, är ettattraktivt företagsområdemed strategisk placering mellan Stockholm och Arlanda.


  • E4:Nåbar på ett par minuter med bil.

  • Avstånd:Centrala Stockholm cirka 25 minuter och Arlanda cirka 15 minuter.

Området

Bredden är enmodern och flexibel företagsparkmed verksamheter inom lättindustri, lager och handel. Här finns ett brett serviceutbud med restauranger, butiker och annan företagsservice.

Varför välja denna fastighet?


  • Framtidssäkrad nyproduktion:Optimerad för både effektivitet och hållbarhet.

  • Flexibla lösningar:Lokaler utformade efter era specifika behov.

  • Strategiskt läge:Perfekt för logistik- och lagerverksamheter, med utmärkt tillgänglighet och smidiga transportmöjligheter.

Välkommen att ta kontakt för mer information eller för att boka ett möte där vi tillsammans kan diskutera hur denna fastighet kan bli en perfekt bas för er verksamhet.

En investering i framtiden - låt oss bygga den tillsammans!

Omgivning

Omgivning/natur:

Flera grönområden finns för exempelvis en lunchpromenad eller löptur. Det planeras för ett bostadsområde i närheten, vilket kommer att göra området ännu mer levande med service dygnet runt.

Företag i närheten:

Bauhaus, SATS, Tesla, Swedbank, Lambertsson, Cramo, Mekonomen

Parkeringsmöjligheter/garage:

Gott om parkeringsplatser finns på fastigheten

Skyltläge:

Det tillgängliga läget bredvid E4:an gör det inte bara lättåtkomligt, utan ger också en hög synlighet och ett fantastiskt skyltläge. Som företag är Bredden därför en utmärkt plats att etablera sig på.

Vägbeskrivning:

Nära anslutning till E4

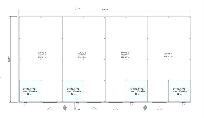
Planlösning

Fastighetsbeteckning:

Ringpärmen 2

Byggår:

2026

Planlösning:

Nyutvecklingsprojekt med anpassningsbar planlösning, se bilder/PDF-fil.

Kommunikationer

Närsta hållplats "Bergkällavägen", bussar går regelbundet med anknytning till pendeltåg Rotebro, Kallhäll samt Upplands Väsby och till tunnelbanan Kista (blå linje). Med bil nås E4an inom ett par minuter, Stockholm C 25 min, Uppsala 35 min och Arlanda på ca 15 minuter.

Service

Närservice:

Brett serviceutbud i form av köpcenter, restauranger, matbutiker, gym, företagshälsovård, tandläkare, apotek, butiker, hotell etc.

Övrigt

Takhöjd:

8,5 m

Lokalen kan nås via:

4 markportar, 1 per lokal

Ventilation:

FTX

Miljöcertifiering:

BREEAM

Den här certifieringen är världens mest använda. Breeam används för befintliga och nybyggda kommersiella byggnader. 2013 kom en svensk version som utgår från svensk lagstiftning, svenska metoder och arbetssätt. Breeam är en heltäckande certifiering med många indikatorer. Här görs bedömningar inom projektledning, energianvändning, inomhusklimat, vattenhushållning, avfallshantering, markanvändning, påverkan på närmiljön, byggmaterial och föroreningar samt byggnadens läge i förhållande till allmänna kommunikationsmedel.

Källa

Kontraktlängd:

Förhandlingsbart

Kontrakttyp:

Förstahandskontrakt

Tillträde:

Planerad byggstart 2026

Kontakta Annonsör

Nathalie Håkansson

Nathalie Håkansson