Lagervägen 28
Stockholm, 639 m2
Rymlig lagerlokal med renoverade personalutrymmen i Jordbro Företagspark Nu finns möjlighet att hyra en rymlig lagerlokal med nyrenoverade personalutrymmen -...
Dokument
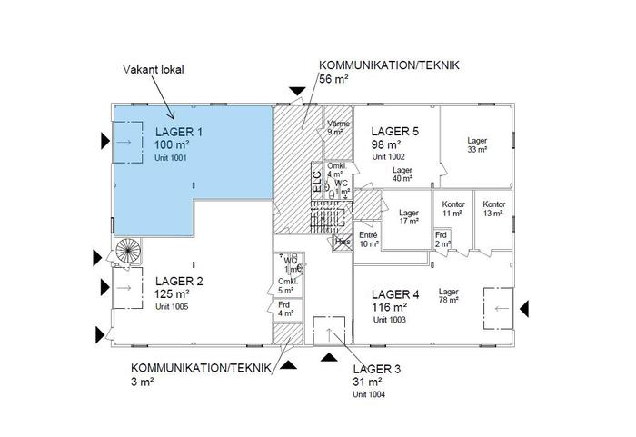
Ritningar - Jordbromalm 6-68 Jordbro.pdfIndustri/Lager, 100 m2, Stockholm
Hyra: Kontakta annonsören
Nu finns möjlighet att hyra en praktisk och lättillgänglig lagerlokal på markplan om 100 kvm. Lokalen har en takhöjd på cirka 3,7 meter och är utrustad med en markport, vilket underlättar in- och utlastning. Befintliga pallställage ger goda förvaringsmöjligheter och effektiv lagerhantering.
Lokalen har även tillgång till WC, dusch och pentry, vilket ger en bekväm arbetsmiljö. Vid behov finns möjlighet att anpassa ytan och lägga till kontorsutrymme för en mer komplett lösning.
Gott om parkeringsplatser finns i direkt anslutning till lokalen, vilket gör det smidigt för både personal och besökare.
Jordbro ligger cirka 25 kilometer söder om centrala Stockholm, på ett fantastiskt läge med nära anslutning till riksväg 73. Riksväg 73 går från Nynäshamn genom Jordbro och sträcker sig till centrala Stockholm, där ett nätverk av trafikleder över hela landet knyts samman. Fastigheten är belägen i Jordbro Företagspark som är ett av Stockholmsregionens största och mest expansiva industriområden. Området präglas av industri- och logistikverksamheter och hel del handel med stora aktörer. Serviceutbud med ett flertal restauranger, matvarubutik, gym och apotek finns i närområdet. Det finns goda kollektivtrafikförbindelser med buss och pendel till Stockholm med omnejd.
Coca-Cola, Bring, TD TechData, Frigoscandia, Dagab, Åhléns och Green Cargo
Parkeringsmöjligheter/garage:Parkeringsplatser i anslutning till lokalen
Vägbeskrivning:Nära anslutning till riksväg 73
Jordbromalm 6:68
Byggår:1989
Våningsplan:1
Planlösning:Se bilder/PDF.
Goda kollektivtrafikförbindelser med buss och pendel till Stockholm med omnejd
Lokalt serviceutbud med bland annat lunchrestauranger, gym och apotek
3,7 m
Lokalen kan nås via:Markport, cirka 3 x 3,10 meter
Kontraktlängd:Förhandlingsbart
Kontrakttyp:Förstahandskontrakt
Tillträde:2026-04-01.