Åsgränd 6

Kontor, 664 m2, Uppsala, Främre Luthagen-Fjärdingen

Hyra: Kontakta annonsören

Unik kontorslokal i historisk miljö
Välkommen till en karaktärsfull kontorslokal om totalt 664 kvm, fördelad på två plan, mitt i ett av Uppsalas äldsta och mest stämningsfulla kvarter. Här kombineras moderna kontorslösningar med historisk charm i en byggnad som ursprungligen nyttjades som stall.

Lokalen erbjuder flera kontors- och mötesrum i varierande storlekar, vilket gör den idealisk för företag som värdesätter både funktion och atmosfär. I hjärtat av lokalen finns ett imponerande trapphus som påminner om byggnadens historia och ger en unik karaktär till arbetsmiljön. Kombinationen av gedigna material, en moderniserad och välanpassad planlösning och ett läge mitt i staden gör Åsgränd 6 till en representativ och inspirerande arbetsplats för företag som söker något utöver det vanliga.

Omgivning

Omgivning/natur:

Välkommen till hjärtat av Uppsala - här möts historisk charm och modern företagsmiljö i ett av stadens mest eftertraktade områden. Med närhet till universitetet, Fyrisån och stadens puls erbjuder området en inspirerande miljö för företag som vill förknippas med kvalitet, stabilitet och framåtanda.

Företag i närheten:

All tänkbar service finns runt hörnet - restauranger, caféer, banker, butiker och gym. Här finns även hotell och konferensanläggningar i direkt närhet, vilket underlättar affärsmöten och företagsevenemang. Kombinationen av centralt läge, förstklassig service och representativ miljö gör detta till en adress som stärker företagets varumärke och attraktivitet.

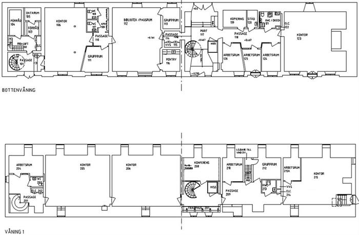
Planlösning

Planlösning:

Lokalen om 664 kvm fördelas på två plan med en planlösning som kombinerar öppna ytor, charmiga detaljer och god funktionalitet.

Entréplanet bjuder på en generös sal som pryds av en vacker öppen spis (ej i bruk) - en karaktärsfull detalj som påminner om byggnadens historia. Här finns även flertalet arbetsrum i varierande storlekar, ett stilfullt trapphus med hiss, samt ett rymligt personalrum med pentry, perfekt för gemensamma pauser eller informella möten.

Övre plan erbjuder tre större öppna kontorsytor samt ett flertal mötesrum i olika storlekar.

WC och RWC finns på båda våningsplanen, vilket bidrar till en praktisk och välfungerande kontorsmiljö.

Kommunikationer

Läget ger utmärkta kommunikationsmöjligheter. Uppsala centralstation nås på några minuters promenad med täta tågförbindelser till Stockholm, Arlanda och Mälardalen. För bilburna finns god tillgång till parkering i området och smidig anslutning till E4:an. Flera busslinjer trafikerar området, vilket gör pendlingen enkel för både personal och besökare.

Övrigt

Tillträde:

Enligt överenskommelse

Kontakta Annonsör

Sandra Johansson

Sandra Johansson