Lagervägen 28
Stockholm, 639 m2
Rymlig lagerlokal med renoverade personalutrymmen i Jordbro Företagspark Nu finns möjlighet att hyra en rymlig lagerlokal med nyrenoverade personalutrymmen -...
Dokument
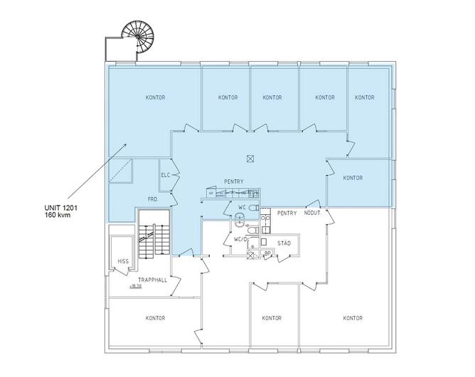
Plan 3 2tr.pdfKontor/Övrigt, 160 m2, Stockholm
Hyra: Kontakta annonsören
Just nu finns en ledig kontorslokal om160 kvadratmeterpåplan 2. Lokalen är imycket bra skickoch erbjuder en ljus och trevlig arbetsmiljö. Planlösningen består av flerakontorsrum i olika storlekar, ettkonferensrum,matsal/pentry,förrådsamtWC. Byggnaden har fri access från Bergkällavägen och det finns parkeringsplatser i direkt anslutning till lokalen.
Bredden (tidigare InfraCity) är ett välkänt och väletablerat företagsområde, strategiskt beläget mellan Stockholm och Arlanda. Härifrån når du E4an på bara ett par minuter med bil, centrala Stockholm på cirka 25 minuter och Arlanda på cirka 15 minuter. Området erbjuder en modern, flexibel och komplett företagspark med lättindustri, lager, handel och ett brett serviceutbud. Dessutom finns utmärkta kollektivtrafikförbindelser, med bussar som stannar precis utanför lokalen, vilket gör det enkelt att pendla både för anställda och besökare.
Flera grönområden finns för exempelvis en lunchpromenad eller löptur. Det planeras för ett bostadsområde i närheten, vilket kommer att göra området ännu mer levande med service dygnet runt.
Företag i närheten:Bauhaus, SATS, Tesla, Swedbank, Lambertsson, Cramo, Mekonomen
Parkeringsmöjligheter/garage:Parkeringsplatser finns på fastigheten
Skyltläge:Det tillgängliga läget bredvid E4:an gör det inte bara lättåtkomligt, utan ger också en hög synlighet och ett fantastiskt skyltläge. Som företag är Bredden därför en utmärkt plats att etablera sig på.
Vägbeskrivning:Nära anslutning till E4
Revisorn 3
Byggår:1988
Våningsplan:2 av 4
Planlösning:Se bilder/PDF.
Närsta hållplats "Bergkällavägen", bussar går regelbundet med anknytning till pendeltåg Rotebro, Kallhäll samt Upplands Väsby och till tunnelbanan Kista (blå linje). Med bil nås E4an inom ett par minuter, Stockholm C 25 min, Uppsala 35 min och Arlanda på ca 15 minuter.
Brett serviceutbud i form av köpcenter, restauranger, matbutiker, gym, företagshälsovård, tandläkare, apotek, butiker, hotell etc.
Gemensamt trapphus med hiss
Hiss:Ja
Kontraktlängd:Förhandlingsbart
Kontrakttyp:Förstahandskontrakt
Tillträde:Enligt överenskommelse