Stålgatan 14

Industri/Lager, 1330 m2, Uppsala, Fyrislund

Hyra: Enligt överenskommelse

Lager- och logistiklokal med stora möjligheter i Fyrislund
Välplanerad lager- och logistiklokal med stor öppen yta, generös takhöjd och fyra portar, varav en med lastkaj. Lokalen rymmer kontor, omklädningsrum med dusch, RWC samt personalrum med pentry. I samråd med hyresvärden finns möjlighet att anpassa lokalen genom till exempel uppförande av entresol ovan befintligt kontor/personalrum. Öppna ytor framför lokalen ger god tillgänglighet för större fordon.

Fyrislund är ett av Uppsalas mest attraktiva verksamhetsområden med ett strategiskt läge intill E4:an och endast några minuter från stadskärnan. Här finns redan ett starkt kluster av företag inom logistik, handel, service och industri - vilket skapar goda synergier och ett dynamiskt företagsklimat. Området erbjuder utmärkt infrastruktur, smidig tillgång till transporter samt närhet till både personalservice och lunchrestauranger.

Varmt välkommen att kontakta ansvarig fastighetsmäklare för vidare information!

Omgivning

Omgivning/natur:

Fyrislund är ett etablerat och expansivt område i sydöstra Uppsala, med en blandning av lättare industri, hantverk, kontor och handel. Området har ett strategiskt läge med god tillgång till både E4:an och Uppsalas centrala delar. Här finns ett brett utbud av service, restauranger och företag inom flera branscher, vilket gör Fyrislund till en attraktiv plats för verksamheter som värdesätter tillgänglighet och närhet till stadens infrastruktur.

Företag i närheten:

I närområdet finns flera lunchrestauranger, bland annat en uppskattad restaurang från Heat i det närliggande kontorshuset Kristallen. Fastigheten ligger även med kort avstånd till Boländerna, ett av Uppsalas största handelsområden, med ett brett serviceutbud som inkluderar IKEA, Boland City, Stadium, Elgiganten, Bauhaus och många fler.

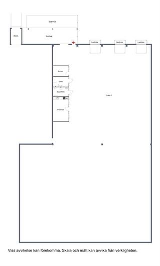
Planlösning

Planlösning:

Höglager om 1 330 kvm med både WC och omklädningsrum. I lokalen finns även kontor och personal/lunchrum. Logistikhallen har tre portar med lastfickor samt en lastport som leder ut till en lastkaj. Det finns även möjlighet att hyra kontor om 150-410 kvm i angränsande byggnad.

Kommunikationer

Läget erbjuder mycket god tillgänglighet för logistik och transporter. De större trafiklederna runt Uppsala nås snabbt, och E4:ans påfart ligger endast några minuter bort. Stadsbussar trafikerar närliggande gator, och området har även goda gång- och cykelförbindelser till övriga delar av staden.

Övrigt

Tillträde:

Enligt överenskommelse

Hyresinformation:

Enligt överenskommelse

Kontakta Annonsör

Sandra Johansson

Sandra Johansson