Dokument

Sylveniusgatan 10 - Energideklaration

Sylveniusgatan 10

Kontor, 110 - 300 m2, Uppsala, Fyrislund

Hyra: Kontakta annonsören

Nyproducerat kontor med det lilla extra
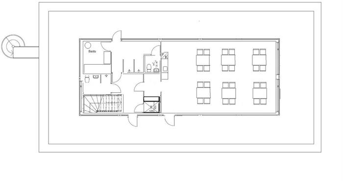
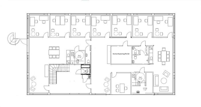
I utmärkt läge på Sylveniusgatan 10 återfinns denna nybyggda kontorsbyggnad som genomgående erbjuder generöst ljusinsläpp från stora fönsterpartier (självklart är kontoret utrustat med kyla för årets varmare dagar), moderna och stilrena ytskikt samt tillgång till gemensam konferenssal och bastu med utsikt över Uppsala domkyrka. På andra våningen finns möjlighet att förhyra en välplanerad och rumsindelad kontorsyta om totalt 300 kvm. Möjlighet finns även att hyra delar av våningsplanet där modularean utgör 190 respektive 110 kvm. Oavsett om ni önskar hyra hela eller delar av våningsplanet erbjuds ett flertal kontorsrum i god storlek och med rogivande utsikt mot grönyta, stilrena RWC och WC/dusch samt personalyta med pentry utrustat med kyl/frys samt diskmaskin.

Fyrislund är ett av Uppsalas mest etablerade verksamhetsområden och erbjuder en modern miljö för kontors- och tjänsteföretag. Här finns gott om service, restauranger och parkeringsmöjligheter, samtidigt som Boländerna och stadskärnan ligger nära. Området har mycket goda kommunikationer med snabb access till E4, busslinjer med täta avgångar och bra cykelvägar. Ett strategiskt läge för företag som söker en lättillgänglig och professionell arbetsplats.

Omgivning

Omgivning/natur:

Fyrislund är ett av Uppsalas största och mest etablerade verksamhetsområden, strategiskt beläget i den sydöstra delen av staden. Området kännetecknas av en modern och flexibel företagsmiljö där kontor, industri och service samsas i ett välplanerat och expansivt landskap. Här finns en dynamisk mix av både små och stora aktörer, vilket skapar goda förutsättningar för samarbeten och affärsutveckling.

Företag i närheten:

I närområdet finns ett brett utbud av service som underlättar arbetsvardagen. Här finns restauranger, caféer, gym, bilservice och flera närbutiker. Större handelsområden som Boländerna ligger endast några minuter bort och erbjuder allt från dagligvaruhandel till elektronik, heminredning och annan kommersiell service.

Planlösning

Byggår:

2025

Planlösning:

Rumsindelad och flexibel planlösning som kan delas upp i två moduler där den större omfattar 190 kvm och den mindre omfattar 110 kvm. Båda modulerna är försedda med personalyta med pentry, ett flertal kontorsrum samt moderna och stilrena WC och RWC-utrymmen.

Kommunikationer

Fyrislund har mycket goda kommunikationsmöjligheter för både bil- och kollektivtrafik. Det är enkelt att nå området via E4:ans på- och avfarter samt viktiga huvudleder som väg 282. Flera busslinjer trafikerar området med täta avgångar som knyter samman Fyrislund med Uppsala centrum och andra stadsdelar.

Övrigt

Tillträde:

Enligt överenskommelse

Kontakta Annonsör

Sandra Johansson

Sandra Johansson