Anna Fabris gata 11

Butik/Kontor, 108 - 336 m2, Uppsala, Fyrislund

Hyra: Kontakta annonsören

Nyproducerad byggnad med moderna och flexibla ytor med ett mycket bra läge i Fyrislund.
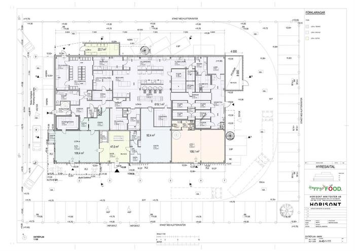
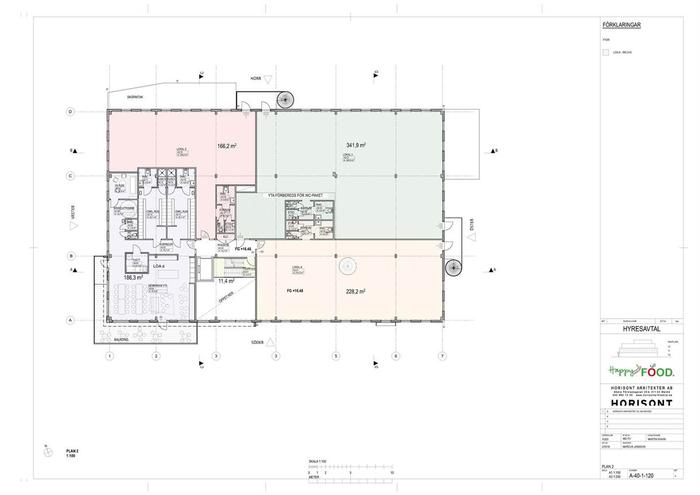
Lokalen om 108 kvm är i markplan med möjlighet till ytterligare yta en trappa upp.
Ett strategiskt läge nära det expansiva området Östra Fyrislund, Boländerna och E4:ans påfart!

Omgivning

Omgivning/natur:

Östra Fyrislund är ett nyetablerat område för industri och logistik med ett utmärkt läge endast ett par minuters bilavstånd till E-4:ans påfart.

Företag i närheten:

Flertalet restauranger finns i de närbelägna områdena Fyrislund och Boländerna. Där finns också Boländernas handelsområde med all service du kan önska.

Planlösning

Byggår:

2022

Planlösning:

Lokalen om 108 kvm ligger i markplan med möjlighet till ytterligare yta en våning upp om 228 kvm. Det finns en spiraltrappa mellan dessa plan.

Kommunikationer

Busshållplats finns på nära gångavstånd och du har direkt närhet till E4:an, perfekt för dig som är bilburen och pendlar eller reser i jobbet norr- eller söderut. Tack vare närheten till city finns fina gång- och cykelvägar och du cyklar till centrala Uppsala på mindre än 20 minuter.

Kontakta Annonsör

Edvin Nicholls

Edvin Nicholls