Palmbladsgatan 4B

Industri/Kontor/Lager, 817 m2, Uppsala, Fyrislund

Industrifastighet till salu på Palmbladsgatan 4- ett mycket strategiskt läge!
Välkommen till denna fastighet som erbjuder två byggnader med blandade ytor. Lagerytorna har väl tilltagna takhöjder med portar, kontorsdelarna erbjuder stor flexibilitet med enskilda kontor, kontorslandskap och konferens. Båda byggnaderna går att dela av i två enheter och anpassa till två hyresgäster i vardera byggnad.
Byggnaden i framkant är också tillgänglig för den nya ägaren omgående. Byggnaden inne på gården är uthyrd till en och samma hyresgäst som har lager och verkstadsytor i markplan och kontor samt personalytor på det övre planet.

På fastigheten finns också utrymme för uppställning samt 16 parkeringsplatser samt 4 st p-platser som har elbilsladdare.

Att etablera verksamhet på Palmbladsgatan i Uppsala innebär att kombinera tillgänglighet, synlighet och smart logistik - ett starkt läge för både små och medelstora företag.

Omgivning

Omgivning/natur:

Fyrislund är ett handels- och kontorsområde med även lättare verkstadsföretag. Området ligger i södra Uppsala och har mycket goda kommunikationsförbindelser till Uppsala centrum med buss eller bil. Området består av en blandning av kontor, handel och service och produktionsföretag. God access till E4:an och Arlanda/Stockholm. Man når även lätt med bil andra större vägar runt Uppsala.

Det är mycket god service i närområdet. Flera lunchrestauranger finns att välja på i Fyrislund. Även närhet till större livsmedelsbutiker och närhet till Boländerna som är ett av Uppsalas största handelsområden med bl.a. IKEA, Bauhaus, Elgiganten och mycket mer.

Kommunikationer

Effektiv logistik & närhet till E4:
Palmbladsgatan ligger i det expansiva området Fyrislund, med direkt närhet till E4:an, vilket gör det enkelt att nå både Uppsala centrum, Arlanda, Stockholm och andra delar av Mälardalen. Perfekt för företag med transport- eller distributionsbehov.

Utmärkta kollektiva trafikförbindelser
Området trafikeras av flera UL-busslinjer, bland annat linje 6, 153 och 190, vilket gör det enkelt för både personal och besökare att ta sig till och från arbetsplatsen - oavsett om de bor i centrala Uppsala eller i kringliggande orter som Knivsta, Storvreta eller Sävja.

Det finns mycket bra gång- och cykelvägar i området.

Övrigt

Byggnad:Industrifastighet

Byggnadstyp: Industri

Byggår: 1988

Beskrivning: Grund: platta på mark, golvvärme, vattenburen
Stomme: stål och trä
Fasad: steniskiva och tegel
Tak: plåt och papp
Fönster: 3-glas

Byggnaden är idag ledig för den nya ägaren eller för att hyra ut. Det är 360 kvm som går att dela upp i två delar då blir ytorna 210 respektive 150 kvm.
Ytorna passar som butik, kontor och lager eller lättare industri/verkstad. Det finns även kök/pentry i vardera delar samt toalett och dusch. Det finns två entréer och en port i dagsläget men det går att få till fler. Det finns fyra öppningar, en på vardera sida om byggnaden där du enkelt kan ta upp antingen en entré eller port om 3x3 meter. Byggnadens takstolar sitter på en längsgående balk vilket gör det är lätt att bygga på en våning till om så önskas. Kort och gott en byggnad med flera möjligheter. Det finns oljeavskiljare.

Uppvärmning, kylning och ventilation
Uppvärmning: fjärrvärme med luftvärmepumpar. Golvvärme, vattenburen.
Ventilation: mekanisk till- och frånluft

Vatten och avloppstyp
Kommunalt vatten och avlopp.

TV/internet
Fiber indraget i byggnaden.

Byggnad:Industrifastighet 2

Byggnadstyp: Industri

Byggår: 2003

Beskrivning: Grund: platta på mark, golvvärme, vattenburen?
Stomme: trä
Fasad: steniskiva och tegel
Tak: plåt och papp
Fönster: 3-glas

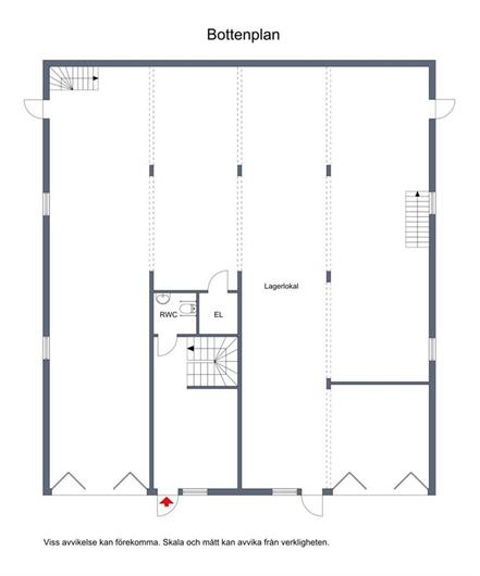
På bottenplanet om 288 m² har finns ett stort lager/verkstadsyta med mellan 3 och 5,5 meters takhöjd. I mitten av lokalen har du en kontorsentré med HWC och trappa upp till kontor samt personalutrymmen. Väl uppe på övre planet finns ett stort lunchrum, ett praktiskt omklädningsrum med dubbla WC, dusch samt förberett för bastu för den som så önskar. Kontor och personalutrymmen på övre planet är på 137 m² och är idag indelat med några kontorsrum samt öppen yta. Separat trappa ner till lager/verkstadsdelen. På högra delen av huset finns även ett entresolplan om ca 57 m² för lager. Här finns också en trappa ner till verkstad/lager i markplan. Två fullstora portar om 4x4 meter. Det finns oljeavskiljare.

Uppvärmning, kylning och ventilation
Uppvärmning: fjärrvärme
Ventilation: Mekanisk till och frånluft.

Vatten och avloppstyp
Kommunalt vatten & avlopp.

TV/internet
Fiber in i huset.

Taxeringsvärde:

7 835 000

Driftskostnad:

30 874 /år

Hyresintäkter:

1 084 984 /år

Kontakta Annonsör

Pernilla Persson

Pernilla Persson