Albybergsringen 116
Stockholm, 190 m2
Industrilokal med gavelläge i populära Albybergs Företagspark En lågt belånad förening med mkt låg månadsavgift - Industrilokal med gavelläge i...
Dokument
Årsredovisning 2023 .pdfIndustri/Kontor/Lager, 200 m2, Stockholm
Här finns även möjlighet att förvärva grannlokalen för det företag som behöver ytterligare yta.
BESKRIVNING
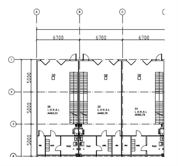
Lokalerna som är utmärkta för lätt industri, verkstad eller lager har en yta om ca 200 m2 fördelat lika på två plan. Här finns möjlighet till 400 m2 genom att öppna upp mellan lokalerna. Lokalerna kan även vara perfekta för det växande företaget som i dagsläget har behov av 200 m2 men inom några år behöver mer yta. I dagsläget finns det en hyresgäst till lokal nummer 4. Båda lokaler är utrustade med pentry samt helkaklade badrum med dusch på övre plan. Vardera lokal har en utezon om ca 50 m2.
Månadsavgift till föreningen är för närvarande: 8 645 kr ex moms. Kostnad för värme, kall & varmvatten tillkommer.
Köpare måste bedriva momspliktig verksamhet. Köparen måste bli godkänd medlem av styrelsen vid ett köp. Brf Jordbro Park 57 är en oäkta förening då alla lokal ägare bedriver kommersiell verksamhet.
Fastigheten:
Byggnaden har en mörkgrå fasad med svarta manuella vikportar och gångdörrar
Vikportar: 4,5 x 4 m med 4 rader fönster, samt gångdörr bredvid. (1,0×2,1m)
Grund: Isolerad platta på mark (lastkapacitet 1 500 kg/m2) med golvvärme, (Borrsäkert djup 10 cm)
Stomme: Stål
Bjälklag: Balk med undertak Vp18/04
Ventilation: Varje lokal har ett eget FTX-system
Uppvärmning: Golvvärme kopplad till fjärrvärme
Fasad: Plåt, Sandwich
Takbeklädnad: Papp, 2 lagers ytpapp
Utvändiga plåtarbeten: Lackad plåt
Fönster: Aluminium 3.glas
Säkerhet: 2st tidsstyrda motoriserade grindar (7m) svart säkerhetsstaket.
Utomhusbelysning: rörelseaktiverad utanför varje port.
Lokalernas entreplan:
Takhöjd ca 5m
Takbeklädnad vitlackad plåt
Golvbeklädnad betong
Belysning lysrör
Trappa till övre plan stål vitmålad
Lokalernas övre plan:
Takhöjd ca 3,2m pa? lägsta del.
Takbeklädnad lackad plåt
Golvbeklädnad Laminatgolv på spånskiva, tål 250kg/m2
Väggbeklädnad vitlackad plåt
Belysning lysrör
Dusch/WC/Pentry
Jordbo företagspark är ett populärt område som ligger ca 30 minuter söder om centrala Stockholm och har ett strategiskt läge diktan Södertörnsleden och Nynäsvägen.
Välkomna på visning!
BOKA VISNING/KONTAKT
Vänligen respektera säljarens önskemål om bokad visning.
För mer information eller visning av objektet, hör av er till Locus Advice genom kontaktformuläret eller ring växeln på 08-558 094 40.
Ansvariga fastighetskonsulter:
Joanna Eriksson 08-558 094 43
Tim Ringdahl 08-558 094 41
Växeln är öppen helgfria vardagar mellan 08.30-17.00.
LOCUS ADVICE
Locus Advice är ett fastighetskonsultbolag med fokus på kommersiella fastigheter och lokaler.
Vi arbetar med
Genom etablerade samarbeten med både stora och små fastighetsägare har vi tillgång till ett stort utbud av lokaler utöver vad vi kan marknadsföra i vår egen regi. Via dessa samarbeten kan vi med stor sannolikhet hjälpa er hitta den lokal ni söker efter.
2 195 000