Lefflersgatan 3

Butik/Kontor/Kontorshotell, 300 m2, Uppsala, Fyrislund

Hyra: Kontakta annonsören

Bra lager eller mindre industrilokal med trevligt kontor/kundmottagning i Fyrislund.
Här finns chansen att hyra gavellokalen som vetter mot Lefflersgatan. Fin entré via dubbla glasdörrar samt en rejäl garageport till verkstad/lagerdelen. Ej bilverkstad i denna lokal.
För mer information kontakta ansvarig mäklare Roger Alm. Välkommen!

Hyran fastställes i samråd med hyresvärden!

Omgivning

Omgivning/natur:

Fyrislund är ett område med viss handel samt mindre industri och hantverksföretag. Även rena kontorsbyggnader finns i området.

Företag i närheten:

Flera lunchrestauranger finns i Fyrislund. Denna del av Fyrislund ligger också nära Boländerna som har ett stort utbud av konsumenthandel inkl. större matvarubutiker.

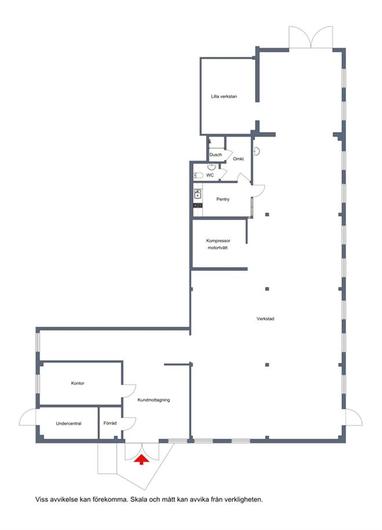
Planlösning

Planlösning:

Via dubbla glasdörrar kommer du in i en kundmottagningsdel. I denna del finns även kontor. Själva verkstads/lagerdelen nås även via en större garageport. Lokalen har en takhöjd på ca 2,90 förutom där ventilationen är installerad och tar lite av takhöjden. I verkstadsdelen finns även en liten personaldel med pentry och omklädningsrum med WC och dusch. Kundmottagning/kontorsdel har klinkergolv och verkstadsdelen har målat betonggolv. Nuvarande hyresgäst flyttar ut i mars 2024 och denna hyresgäst har varit i lokalen under väldigt lång tid varför lokalen troligtvis behöver en uppgradering innan ny hyresgäst flyttar in. Därför har du stor möjlighet att påverka utformningen av lokalen.

Kommunikationer

Stadsbussar trafikerar närliggande gator. Enkelt att ta sig med bil mot E4:an och andra större vägar runt Uppsala. Även enkelt att via bil eller cykel nå Uppsalas centrum.

Kontakta Annonsör

Edvin Nicholls

Edvin Nicholls