Arkgatan 9

Butik/Kontor/Övrigt, 94 - 1432 m2, Uppsala, Fyrislund

Hyra: Kontakta annonsören

Klimatsmart kontorsbyggnad och butik/showroom i entréplan- Östra Fyrislund
En katt bland hermelinerna! Industribyggnader uppförs på löpande band över hela Sverige, men väldigt få aktörer gör det med genomtänkta materialval och med hänsyn till det klimatavtryck och det koldioxidutsläpp som byggnaden lämnar efter sig.I populära Östra Fyrislund finns nu chansen att ta ett miljömedvetet beslut då Walloxstrand planerar för framtidens hållbara kontor.En kontorsbyggnad för företag som tänker långsiktigt och medvetet och en byggnad för företagare som vill skapa en arbetsplats för sina medarbetare där hälsan, både fysiskt och psykiskt, prioriteras.
Byggnaden kommer att uppföras i det enda förnyelsebara byggnadsmaterialet som finns, det vill säga trä, i så stor som möjligt där både ytterväggar, bjälklag, tak, all isolering och mycket av inredningen består av trä i någon form. Genom att isolera med cellulosa så kan konstruktionen lämnas diffusionsöppen varpå man slipper den sedvanliga ångplasten och därmed skapas ett klart mycket bättre inomhusklimat.

Här kommer vi att erbjuda uthyrningsbara kontorsytor från 93,5 kvm till 1432 kvm och del i gemensamma lokaler såsom bokningsbart konferensrum, toaletter, trapphus med hiss samt en stor inbjudande gemensam takterrass med växtlighet och generöst med utemöbler för att hyresgäster skall kunna jobba, ha rast eller varför inte hålla sina möten utomhus när vädret tillåter?

Möjlighet finns att hyra större kontorsytor som exemplvis del av ett helt plan, ett helt eget plan eller fler/samtliga plan och givetvis kan lokalerna anpassas efter hyresgästens eventuella behov avseende rumsindelning, interiör, verksamhetstyp etc. I entréplan finns en yta om ca 592 kvm innehållande lokaler för butik/showroom med stora skylfönster samt möjlighet till backoffice.

Läget på Arkgatan 9 är strategiskt och genomtänkt med direkt närhet till buss, gång och cykelstråk och bara ett stenkast från nya E4:ans av- och påfart.

Omgivning

Omgivning/natur:

Östra Fyrislund är ett nyetablerat område för industri och logistik med ett utmärkt läge endast ett par minuters bilavstånd till E-4:ans påfart.

Företag i närheten:

Flertalet restauranger finns i de närbelägna områdena Fyrislund och Boländerna. Där finns också Boländernas handelsområde med all service du behöver.

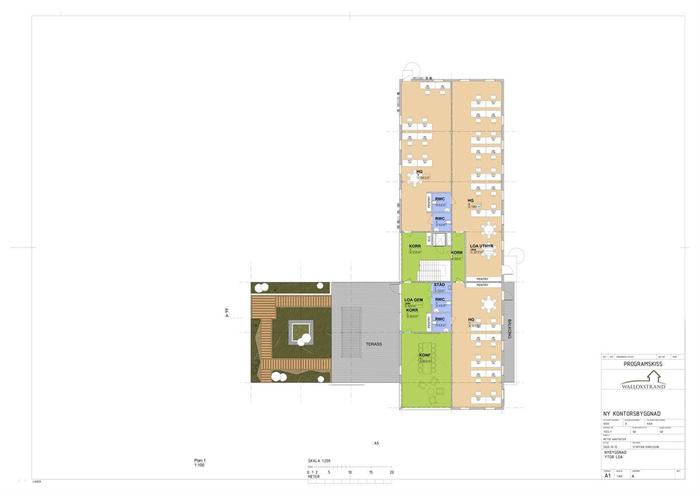
Planlösning

Planlösning:

Skapa ditt företags nya kontor med konferensrum, telefonrum, personalytor mm som är optimala för just er personal och verksamhet. Lokalerna kommer att inredas med trägolv, innerväggar av modern träpanel och synliga installationer som standard men anpassas givetvis efter hyresgästens behov.
Modernt, stilrent och ytorna rumsanpassas efter önskemål. Byggnaden är uppdelad i tre plan och här finns möjlighet och flexibilitet att hyra kontor i storleksordning 93,5 kvm upp till 422,6 kvm men det finns även möjlighet att hyra större ytor av ett helt plan eller flertalet plan. Den totala uthyrningsbara ytan är 1432 kvm och utöver detta finns gemensamma ytor såsom bokningsbart konferensrum , besökstoaletter, en gemensam stor takterrass och trapphus med hiss. På entréplan finns butik/showroom med magiskt ljusinsläpp tack vare stora butiksfönster och ett backoffice om totalt ca 592 kvm.

Kommunikationer

Bra busskommunikationer samt gång och cykelstråk som leder dig till alla platser runt om i Uppsala.
Busshållplats finns på nära gångavstånd på Rapsgatan och du har direkt närhet till E4:an, perfekt för dig som är bilburen och pendlar eller reser i jobbet norr- eller söderut. Tack vare närheten till city finns fina gång- och cykelvägar och du cyklar till centrala Uppsala på mindre än 20 minuter.

Kontakta Annonsör

Pernilla Persson

Pernilla Persson