Gustav III:s boulevard 34
Stockholm, 10 - 500 m2
Anamma det nya sättet att arbeta - hyr ett lättillgängligt kontor i en professionell arbetsmiljö med flexibla avtalslängder & korta...
Kontor/Övrigt, 115 m2, Stockholm
Hyra: 1 500 kr/m²/år. Hyra: Kontakta lokalförmedlaren för mer info. Fastighetsskatt: ca 172 kr/kvm/år. Ingen moms tillkommer idag.
Nära till utmärkta kommunikationer, trevliga restauranger och ett gediget serviceutbud!
Om lokalen
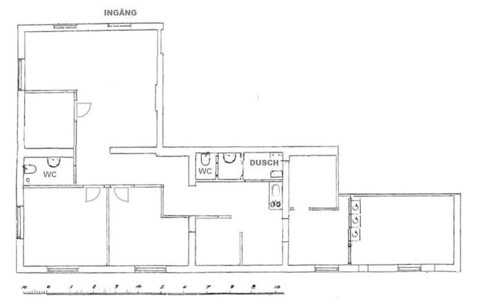
Planlösningen är rumsindelad och lokalen har egen ingång. När du kliver in så möts du av en välkomnande entré i ett hörnrum. Intill finns ett fönsterlöst förråd. Rum 2 är ett hörnrum med fönster i två vädersteck. Lokalen har ytterligare fyra rum varav ett med ett enklare trinettkök. I detta rum har avskiljande väggar satts upp vilka lätt går att ta ned om så önskas. Här är även lokalens två wc samt duschrum med duschkabin placerade. De vår innersta rummen har grått klinkergolv och de övriga golven är i laminat.
Lokalen passar exempelvis som kontor eller showroom. Lokalen skulle också kunna passa för en hantverkare eller föreningsverksamhet ifall verksamheten inte blir störande för boenden i huset.
Bredband:Tele2 (före detta ComHem) finns anslutet till huset för Internetuppkoppling.
Det är gångavstånd till Sundbybergs Centrum med utmärkta kommunikationer samt omgivningar som utgör en mix av bostäder och ett rikt utbud av kommersiell service, butiker och restauranger. Inom gångavstånd finns Bällstaån och Marabouparken med grönska och möjlighet till utomhusträning. Idylliska omgivningar kring Gjuteribacken med viss bebyggelse från det förra sekelskiftet och en gammal kyrka. Gjuteribacken är i sig en lugn gata vad gäller biltrafik.
Parkeringsmöjligheter/garage:Du parkerar enkelt längs med gatorna i närheten av fastigheten enligt stadens tariff.
1946
Det är gångavstånd till Sundbybergs Centrum som näst efter T-centralen är Stockholms kollektivtrafiks bästa knutpunkt. Här passerar tvärbanan samt flertalet busslinjer och flygbussar. Här finns även stationshuset med tunnelbana, pendeltåg, vissa fjärrtåg och även regionaltågen mot Västerås. Fastigheten är även lättillgänglig för bilburna då du snabbt når E4:an via påfart från Frösundaleden samt E18 via påfart från Rissneleden.
Detta är även ett bra strategiskt läge för företag med många internationella besökare med närheten till båda Arlanda och Bromma flygplats. Det tar inte mer än en kvart med tunnelbanan in till Stockholms Central.
I Sundbyberg Centrum finns bland annat ett trevligt bageri, Lidl samt Kjell och Comany, Apotek, ett 100-tal affärer och butiker, ett stort utbud av restauranger, caféer, mataffärer, hotell, bibliotek och all tänkbar service du kan behöva för att underlätta din vardag.
Föreningen har fri prövningsrätt vad gäller val av hyresgäst och verksamhet.
Vänligen respektera att all kontakt och visningar sker via mäklaren enligt föreningens önskemål.
Omgående eller enligt ök.
Utgångshyra kr/m2/år:1500
Hyresinformation:Hyra: Kontakta lokalförmedlaren för mer info.
Fastighetsskatt: ca 172 kr/kvm/år. Ingen moms tillkommer idag.