Dokument

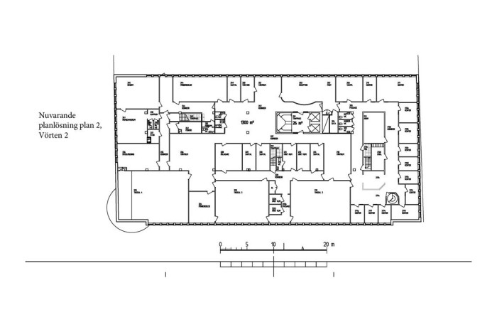
Planlösning plan 2 Vörten 2
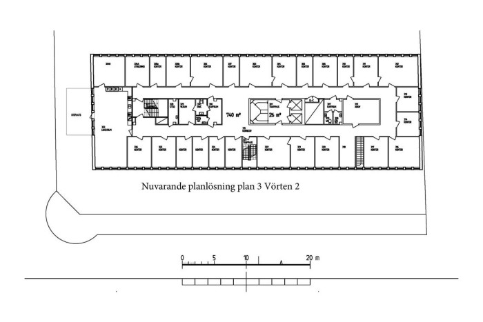
Planlösning plan 3 Vörten 2
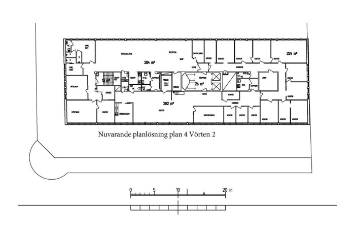
Planlösning plan 4 Vörten 2

Rademachergatan 8

Kontor/Övrigt/Övrigt, 740 - 3500 m2, Eskilstuna, Centralt

Hyra: 0 kr/kvm/år

Välkommen till möjligheternas kvarter!

Här erbjuder vi effektiva lösningar då lokalerna anpassas efter just er verksamhet. Planlösning och ytskikt skissas fram tillsammans med hyresgästen - vård- eller utbildningslokaler, kontorslandskap, enskilda kontor, konferensrum mm, vilka behov har ni?
I Vörten 2 finns möjlighet att hyra lokaler från 740 - 3 500 kvm.

Varmgarage finns i fastigheten. Flertalet utomhusparkeringar och parkeringshus är belägna inom gångavstånd i centrum.

Omgivning

Fastigheten Vörten 2 har ett mycket centralt läge intill Fristadstorget med gångavstånd till tåg- och busstation, shopping, restauranger, gym, apotek, frisörer, hotell, Mälardalens Universitet mm. Ett stenkast från Stadsparken och promenadstråk runt Eskilstunaån. Till Munktellbadet och Volvo CE Arena är det en kort promenad på ca 10 minuter.

Kommunikationer

Fastigheten ligger endast ett par hundra meter från tågstationen och Resecentrum med täta avgångar till bl a Stockholm, Västerås och Örebro. Ett par minuters promenad till de flesta lokala busslinjerna.

Kontakta Annonsör

Per Forell

Per Forell