Dokument

K43 - 733 kvm

Kungsgatan 43

Kontor/Övrigt, 723 m2, Eskilstuna, Centralt

Hyra: 0 kr/kvm/år

Välkomna till K43 och ett kontor om 723 kvm!

Välkommen till K43 - Eskilstunas modernaste kontorskvarter. Välkänd och representativ fastighet som har moderniserats och som håller hög nivå på säkerhet och skalskydd.

Hyresgäster är bland andra Heat Restauranger, Fortifikationsverket, Sweco, Skatteverket, Försäkringskassan, Region Sörmland, Snabbdoktor, Qleano, Livförsäkringsbolaget Skandia, Aspia och Suits Advokater.

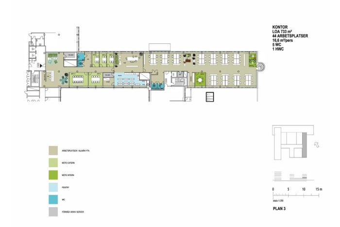
Denna visionsbild av planlösning om 723 kvm erbjuder 44 arbetsplatser, konferens- och samtalsrum i varierande storlekar, paus - och lunchrum samt wc-grupper.

Här erbjuder vi effektiva lösningar då kontorslokalerna anpassas efter just er verksamhet. Planlösning och ytskikt skissas fram tillsammans med hyresgästen - kontorslandskap, enskilda kontor, konferensrum, lunchutrymmen mm, vilka behov har ni?

Flertalet utomhusparkeringar och parkeringshus är belägna inom gångavstånd i centrum.

Omgivning

K43 har ett mycket centralt läge med gångavstånd till tåg- och busstation, shopping, restauranger, gym, apotek, frisörer, hotell, Mälardalens Universitet mm. Ett stenkast från fina parker och promenadstråk runt Eskilstunaån. Till Munktellbadet och Volvo CE Arena är det en kort promenad på ca 8 minuter.

Kommunikationer

Fastigheten ligger endast ett par hundra meter från tågstationen och Resecentrum med täta avgångar till bl a Stockholm, Västerås och Örebro. Ett par minuters promenad till de flesta lokala busslinjerna.

Kontakta Annonsör

Monica Gustavsson

Monica Gustavsson