Dokument

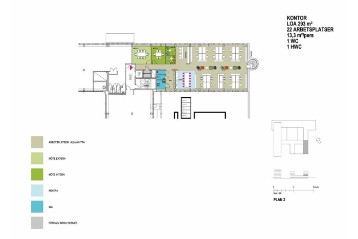
Planlösning - 293 kvm, K43

Kungsgatan 43

Kontor/Övrigt, 293 m2, Eskilstuna, Centralt

Nyrenoverad kontorslokal i centrum av Eskilstuna

Mycket trevlig och modern kontorslokal i K43. Kontorslandskap för 18-20 personer, tyst kontor för 2 personer, tre mindre samtalsrum, tre mötesrum, reception, lunchrum och wc-grupp.

Tillträde 2026-07-01 eller enligt överenskommelse.

Omgivning

K43 har ett mycket centralt läge med gångavstånd till tåg- och busstation, shopping, restauranger, gym, apotek, frisörer, hotell, Mälardalens Universitet mm. Ett stenkast från fina parker och promenadstråk runt Eskilstunaån. Till Munktellbadet och Volvo CE Arena är det en kort promenad på ca 8 minuter.

Kommunikationer

Fastigheten ligger endast ett par hundra meter från tågstationen och Resecentrum med täta avgångar till bl a Stockholm, Västerås och Örebro. Ett par minuters promenad till de flesta lokala busslinjerna.

Kontakta Annonsör

Monica Gustavsson

Monica Gustavsson