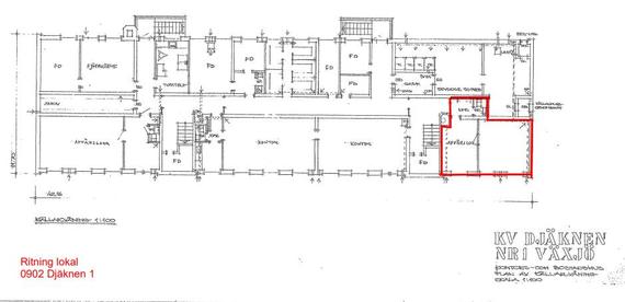
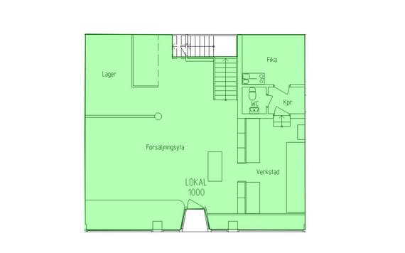
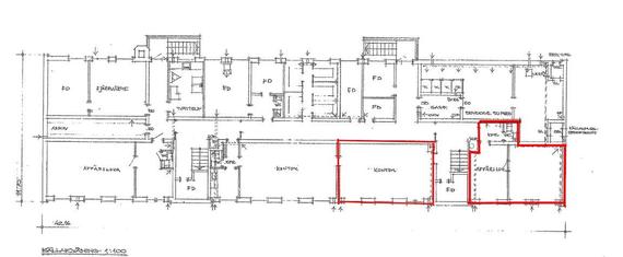
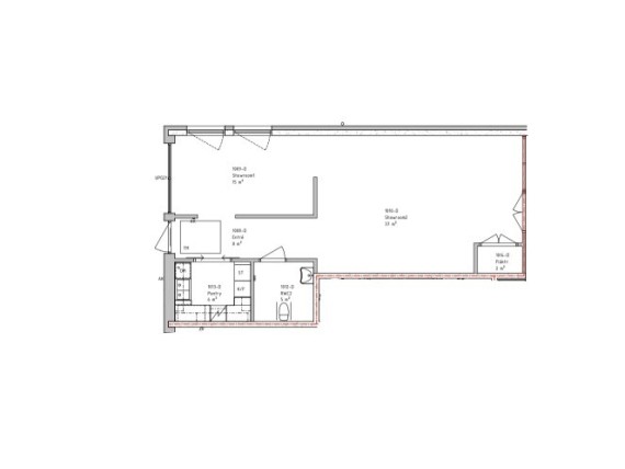
General hero image

Hyr lediga övrigt