Kungsängsvägen 14

Industri/Kontor/Lager, 1239 m2, Uppsala, Boländerna

Hyra: Kontakta annonsören

Logisitk/ Industriytor med tillhörande uppställningsytor
Nu erbjuds en industriyta om ca 1239 kvm uppdelad i ca 839 kvm poassande för lager, logistik eller industri med tillhörande butik, kontor och personalutrymmen om ca 400 kvm. Belägen i ett utmärkt läge med tillfart för i och urlastning samt gott om parkeringsplatser på inhägnad yta. I lager- och snickeridelen finns två stora portar vilket möjliggör en delbar yta om ca 586 kvm. Tack vare den generösa ytan och tillgång till avlopp och vatten i lagerdelen finns också möjlighet att öppna upp för butik/utställning med tillhörande kontor mot Kungsängsvägen. I lagerdelen finns även lackverkstad. Genomgående fräscha ytskikt bör passa företaget som behöver ett snabbt tillträde. Generös parkeringsyta på gården för kunder och personal samt rikligt med uppställningsyta på en egen inhägnad gård.

Hyran fastställes i samråd mellan hyresvärd och hyresgäst. Hyran är en kallhyra. Moms och fastighetsskatt tillkommer. Hyresgästen tecknar eget elabonnemang .

Normalt behöver hyresgästen ställa en säkerhet i form av en bankgaranti eller annan av hyresvärden godtagbar säkerhet.

Omgivning

Omgivning/natur:

Boländerna är en stadsdel i östra Uppsala och sträcker sig från söder om Strandbodkilen och Fålhagsleden ända bort till Gnistarondellen.
Området har främst en industrikaraktär med flera stora industrier såsom GE Health Care, Vattenfall etc. I området finns även handel, både grossist- och konsumenthandel såsom Maskin &Verktyg, Dahls, Bauhaus, Coop, Ikea, Biltema, diverse bilhandel osv.

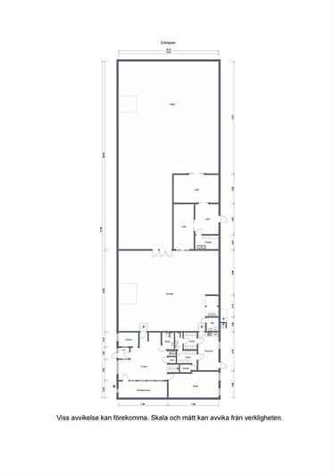
Planlösning

Planlösning:

Lokalen består av totalt 1239 kvm fördelat på 839 kvm lager/lackverkstad med två portar och ett mycket fräscht inrett kontor med personalytor om ca 400 kvm. Takhöjden i lagerdelen är 4.76 meter. Stor asfalterad inhägnad gård med parkeringar på gården för kunder och personal samt rikligt med uppställningsyta.

Kontakta Annonsör

Zouhair Ayed

Zouhair Ayed