Björkgatan 73

Kontor, 213 m2, Uppsala, Boländerna

Hyra: Kontakta annonsören

Moderna kontorsytor i Bolänaderna
Nu har du möjlighet att hyra en ljus och modern kontorslokal med ett mycket attraktivt läge i Boländerna.
Lokalen om 213 kvm ligger i markplan och erbjuder en flexibel planlösning med både öppna arbetsytor och rum i varierande storlek - perfekt för företag med behov av både samarbete och avskildhet.
Kontoret är i mycket gott skick med trevliga personalutrymmen som skapar en trivsam arbetsmiljö. Här sitter ni i ett strategiskt läge med utmärkta kommunikationer och närhet till all tänkbar service.

Området Boländerna är ett expansivt handels och industriområde. Med både ett centralt läge och enkla kommunikationer till Arlanda och Stockholm gör att många företag lockas hit. Idag rymmer området redan flera internationella bolag som gör att många som etablerar sig här får tillgång till nya samarbeten och utvecklingsmöjligheter.

Vill du veta mer eller boka en visning? Kontakta ansvarig mäklare redan idag!

Omgivning

Omgivning/natur:

Boländerna är ett av Uppsalas mest dynamiska och expansiva områden, perfekt placerat för både företag och boende som söker närhet till stadens alla möjligheter samtidigt som de vill vara en del av en växande och utvecklande stadsdel. Här hittar du ett varierat utbud av moderna kontorslokaler, handelsytor och logistiklösningar, vilket gör området till ett nav för både stora och små företag.
Med sitt strategiska läge i Uppsala, bara ett stenkast från både E4:an och stadens centrum, erbjuder Boländerna snabb och enkel tillgång till både regional och nationell transportinfrastruktur. Här får du ett utmärkt läge för företag som behöver effektiv logistik och ett högt flöde av kunder och affärsrelationer.
Boländerna är också ett område som ständigt utvecklas och förbättras, med nybyggnationer och innovativa lösningar som förvandlar det till en modern och attraktiv plats för både företag och invånare. Områdets blandning av kontor, butiker och servicefaciliteter skapar ett levande och inspirerande klimat för alla som arbetar eller bor här.

Företag i närheten:

Här finns det ett generöst utbud av service med både lunchrestauranger och flera stora varuhus och nära Bolandscity med flera butiker.

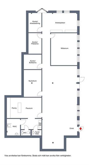
Planlösning

Planlösning:

Kontorslokal i markplan om ca 213 kvm med 4 st kontorsrum, ett större mötesrum samt ett utrymme passande för arbetsplatser i öppet landskap. Denna lokal kommer med två st toaletter en RWC/dusch och en standard WC. Lokalen har ett härligt ljusinsläpp och parkeringsplatser i direkt anslutning. Lokalen kommer i en modern grundanpassning som framgår av bilderna. Mörk heltäckningsmatta och undertak samt glaspartier bidrar till en härlig premiumkänsla. Lokalerna är flexibla och kan anpassas efter hyresgästens behov om så önskas.

Kommunikationer

Härifrån finns det goda kommunikationer med direkt närhet till Kungsängsleden och E4:ans påfarter. Det finns också goda gång- och cykelvägar in till Uppsala. Uppsala buss trafikerar området.

Kontakta Annonsör

Zouhair Ayed

Zouhair Ayed