Kumlagatan 6

Butik/Industri/Lager, 1073 m2, Uppsala, Fyrislund

Hyra: 1 500 /m²/år

Butik/sällanköpshandel i Östyra Fyrislund
Nu finns en attraktiv butiksyta om 1073 kvm tillgänglig och perfekt anpassad för B2B/sällanköpshandel. Den rymliga lokalen erbjuder flexibla lösningar för företag som behöver både butiksyta och lagerutrymme. Med en praktisk port för smidig lastning och lossning får du en effektiv logistiklösning i direkt anslutning till butiksytan. Lokalen är idealisk för exempelvis insustri , distribution eller som showroom för företag som vill visa upp sina produkter på ett professionellt sätt. Här får du stora ytor och en strategiskt bra läge för att driva en framgångsrik B2B-verksamhet (business to business).
Kontakta oss för mer information eller för att boka en visning av denna potentiella affärslokal.

Omgivning

Omgivning/natur:

Östra fyrislund är ett nyetablerat industri och handelsområde i sydöstra Uppsala som växer med snabb takt. Området är beläget längs med E4an och är redan idag en mycket attraktiv arbetsplats för många stora företag på grund av dess geografiska placering. Här finns ett gediget utbud av service både i Östra Fyrislund men också med närheten till Boländerna, Fyrislund och Gränbystaden. Här finn all form av service med lunchställen och stora butikskedjor.

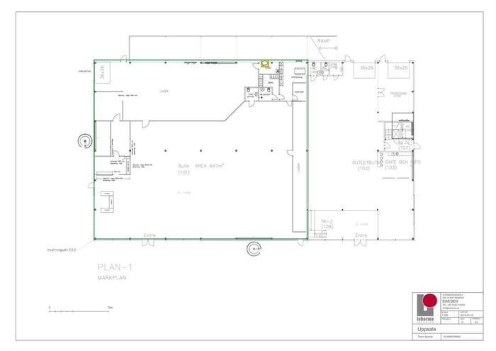
Planlösning

Planlösning:

Lokal om ca 1073 kvm. Butiksytan i en öppen planlösning om ca 647 kvm med endast en pelarrad. I bakkkant finns i dagsläget ett lager samt personalytor så som omkädningsrum, toaletter, lunchrum och kontorsytor. Lokalen är utrustad med port och bjuder på generösa takhöjder och ljusinsläpp tack vare dess stora fönsterpartier.

Kommunikationer

Fina Cykelbanor i alla riktingar Buss 804 tar dig hela vägen till Centralstationen på 15 minuter. E4ans på och avfart ligger i anslutning till fastigheten vilket gör det mycket smidigt för den bilburne.

Övrigt

Utgångshyra kr/m2/år:

1500

Kontakta Annonsör

Sandra Johansson

Sandra Johansson