Dokument

Planlösning
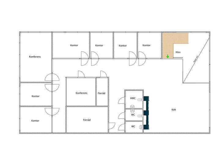
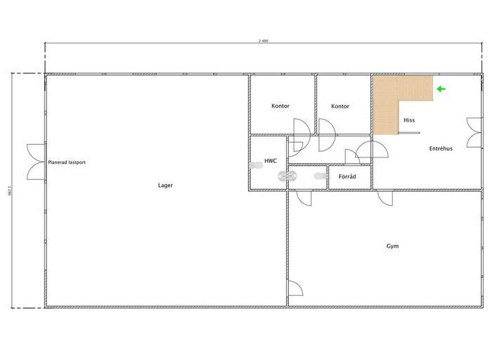
Planlösning, alternativ planlösning

Vretvägen 14

Kontor/Kontorshotell/Lager, 470 m2, Stockholm

Hyra: Kontakta annonsören

Modern kontors- och lagerlokal med utmärkt läge i Trångsund

På Vretvägen 14 erbjuds ca 275 kvm modernt kontor med stora glaspartier och ca 195 kvm lager med ca 3 m takhöjd. Fastigheten har inhägnad markyta för uppställning, parkering intill byggnaden och ligger strategiskt placerad intill väg 73 för smidig åtkomst.

BESKRIVNING

Vretvägen 14, Trångsund - Kontor och lager med utmärkt läge intill väg 73

Nu finns möjlighet att hyra en modern och välanpassad lokal i Trångsund. På Vretvägen 14 erbjuds ett kontor på ca 275 kvm och ett lager om ca 195 kvm, vilket ger en optimal kombination för företag med behov av både arbetsytor och lagringsmöjligheter. 

Kontor

Kontorsdelen är smakfullt designad med en modern touch och stora glaspartier som ger ett fantastiskt ljusinsläpp. Ytan är flexibel och kan anpassas efter verksamhetens behov, vilket skapar en inspirerande och trivsam arbetsmiljö för både medarbetare och besökare.

Lager

Lagret erbjuder en takhöjd på ca 3 meter och är väl lämpat för olika typer av verksamheter. Här finns goda möjligheter för förvaring, logistik eller produktionsändamål.

Markyta och parkering

Lokalen inkluderar en inhägnad markyta som är idealisk för uppställning eller extra förvaring. För enkel tillgång och bekvämlighet finns parkeringsmöjligheter intill fastigheten för både anställda och besökare. 

Läge

Fastigheten ligger strategiskt placerad intill väg 73, vilket ger ett utmärkt utgångsläge för transporter och pendling. Närheten till större vägar och kommunikationer gör detta till ett optimalt läge för företag som vill kombinera tillgänglighet med representativa lokaler.

BOKA VISNING / KONTAKT

Vänligen respektera säljarens önskemål om bokad visning.

För mer information eller visning av objektet, hör av er till Locus Advice genom kontaktformuläret eller ring växeln på 08-558 094 40.

Växeln är öppen helgfria vardagar mellan 08.30-17.00.

LOCUS ADVICE

Locus Advice är ett fastighetskonsultbolag med fokus på kommersiella fastigheter och lokaler.
Vi arbetar med


  • Lokaluthyrning

  • Lokalöverlåtelser 

  • Sökuppdrag på spotmarknaden eller tenant rep

  • Transaktionsrådgivning

  • Värdering

  • Projektledning

  • Vi representerar även hyresgäster som vill ha hjälp med sitt lokalsökande.


Genom etablerade samarbeten med både stora och små fastighetsägare har vi tillgång till ett stort utbud av lokaler utöver vad vi kan marknadsföra i vår egen regi. Via dessa samarbeten kan vi med stor sannolikhet hjälpa er hitta den lokal ni söker efter.

Kontakta Annonsör

Tim Liljegren

Tim Liljegren