Dokument

Kumla Hage 3 3_706 kvm_Floor Plan.pdf

Kumla gårdsväg 24A

Industri/Kontor/Lager, 706 m2, Stockholm, Eriksberg

Hyra: Kontakta annonsören

Rymlig lager- och kontorslokal med 6,5 m takhöjd och strategiskt läge vid E4/E20

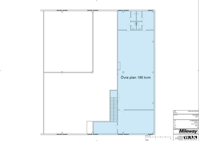
Denna kombinerade lager- och kontorslokal omfattar totalt706 kvm, fördelat påmarkplanochentresolplan.Lagerdelen om 516 kvmerbjuder generösa ytor med6,5 meters takhöjd, stora öppna ytor och utmärkta lastningsmöjligheter via egen markport.

Kontorsdelen om 190 kvmrymmer både öppna arbetsytor och mindre kontorsrum samt kompletta faciliteter såsompentry, omklädningsrum och WC.

Fastigheten är belägen på ettinhägnat områdemedasfalterad gårdsytaoch mycket godaparkeringsmöjligheteri direkt anslutning till lokalen.

Eriksbergs industriområde ligger cirka20 minuter söder om centrala Stockholm, i ett strategiskt läge intillE4/E20 och Hågelbyleden. Området präglas av lättindustri och handel, och i närliggandeAlby och Hallunda Centrumfinns ett brett utbud av service, butiker och lunchrestauranger. Här finns även godakollektivtrafikförbindelsermed både buss och tunnelbana.

Omgivning

Företag i närheten:

BAUHAUS, Biltema, Mekonomen, Ahlsell och CityMail

Parkeringsmöjligheter/garage:

Parkering mot avgift

Vägbeskrivning:

Direkt anslutning till E4/E20 och Hågelbyleden

Planlösning

Fastighetsbeteckning:

Kumla Hage 3

Byggår:

1985

Våningsplan:

1 av 2

Planlösning:

Se bilder/PDF.

Kommunikationer

Goda kollektivtrafikförbindelser med buss och tunnelbana till Stockholm med omnejd

Service

Närservice:

Stort serviceutbud av butiker och lunchrestauranger i närliggande Alby och Hallunda Centrum

Övrigt

Takhöjd:

6,5 m

Lokalen kan nås via:

Egen entré och en markport

Kontraktlängd:

Förhandlingsbart

Kontrakttyp:

Förstahandskontrakt

Tillträde:

Enligt överenskommelse

Kontakta Annonsör

Sanna Backenroth

Sanna Backenroth