Dokument

Planritning_Hantverkaren 2_Unit 5, Unit 3

Hantverkarvägen 9

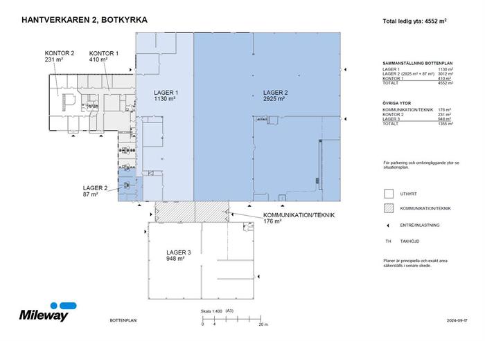
Butik/Industri/Kontor, 700 - 3012 m2, Stockholm, Eriksberg

Hyra: Kontakta annonsören

Lager- och industrilokal med verkstad och kundmottagning - flexibel uppdelning efter önskemål

Nu finns möjlighet att hyra flexibla lager- och industrilokaler i Eriksbergs industriområde. Lokalerna är lämpliga för både mindre och större verksamheter inom lager, verkstad eller kombinerad produktion.

Lokalen i korthet:


  • Markplan:Samtliga ytor ligger i markplan med två egna markportar för smidig in- och utlastning.


  • Takhöjd:Generös takhöjd om 6 meter ger effektiva möjligheter för lagring och verkstadsverksamhet.


  • Kundmottagning:Separat entré till kundmottagning - perfekt för verksamheter med besökare.


  • Personalutrymmen:Kontor, pentry, omklädningsrum och WC ingår.


  • Rangerytor:Gott om rangerytor och fri parkering inom inhägnat område med manuella grindar.


Flexibla ytor - anpassade efter din verksamhet:
Lokalen erbjuder stor flexibilitet och kan anpassas efter behov - hyr en del från 700 kvm eller hela ytan om 3 012 kvm. Möjligheterna är många för företag med krav på funktionella och tillgängliga lokaler.

Om området:
Eriksbergs industriområde är strategiskt beläget ca 20 km söder om Stockholm, med direktaccess till E4/E20 och Hågelbyleden - perfekt för logistikintensiv verksamhet. Nära till service i Alby och Hallunda Centrum samt goda kommunikationer med buss och tunnelbana.

Kontakta oss för mer information eller för att boka en visning - ytorna anpassas efter din verksamhet!

Omgivning

Omgivning/natur:

Eriksberg Industriområde 20 km från centrala Stockholm

Företag i närheten:

BAUHAUS, Biltema, Mekonomen, Ahlsell och CityMail

Parkeringsmöjligheter/garage:

Parkering mot avgift

Planlösning

Fastighetsbeteckning:

Hantverkaren 2

Byggår:

1976

Våningsplan:

1 av 1

Planlösning:

Se bilder/PDF.

Kommunikationer

Goda kollektivtrafikförbindelser med buss och tunnelbana till Stockholm med omnejd

Service

Närservice:

Stort serviceutbud av butiker och lunchrestauranger i närliggande Alby och Hallunda Centrum

Övrigt

Takhöjd:

6 m

Lokalen kan nås via:

Två markportar

Kontraktlängd:

Förhandlingsbart

Kontrakttyp:

Förstahandskontrakt

Tillträde:

Enligt överenskommelse

Kontakta Annonsör

Sanna Backenroth

Sanna Backenroth