Kraftvägen 28
Brunna industriområde, Stockholm, 598 m2
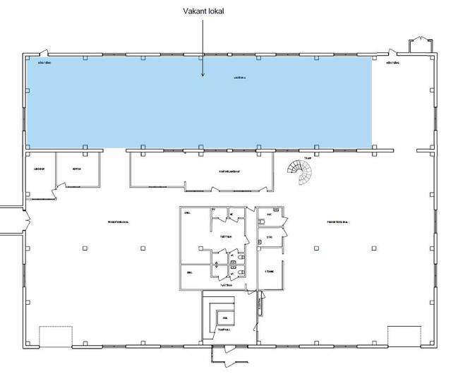
Flexibel kontorsyta om 598 kvm - anpassningsbar efter behov På plan ett i fastigheten finns en ledig yta om 598...
Dokument
Ritning_Viby 19:54.pdfIndustri/Kontor/Lager, 500 - 1331 m2, Stockholm, Brunna industriområde
Hyra: Kontakta annonsören
Nu finns möjligheten att hyra en rymlig och välunderhållen lager- och kontorslokal i ett modernt företagsområde med smidig logistik. Lokalen kan hyras i flexibla storlekar frånca 500 kvm upp till 1 331 kvm, beroende på behov. Ett exempel på en mindre yta ärca 350 kvm lagerkombinerat medca 150 kvm kontor.
Lokalens fördelar:
Effektivt lager & produktion
- Upp till 733 kvm lager på markplan med 3,95 m takhöjd och hög golvbärighet (1 500 kg/kvm).
- Möjlighet att installera markport för smidig in- och utlastning.
- För mindre förhyrningar kan lagerdelen anpassas, t.ex. ca 350 kvm.
Flexibla kontorsytor
- Upp till 598 kvm kontor på plan ett med 3,65 m takhöjd, kontorsrum, pentry/kök, WC samt omklädningsrum med dusch (golvbärighet 520 kg/kvm).
- Kontorsytan kan anpassas efter behov, exempelvis ca 150 kvm vid en total yta runt 500 kvm.
Modern & uppgraderad
- Lokalen är nyligen utrustad med energieffektiv LED-belysning.
Säkerhet & tillgänglighet
- Fastigheten ligger inom ett inhägnat område med goda parkeringsmöjligheter precis intill byggnaden.
Optimalt läge
- Brunna i Upplands-Bro erbjuder snabb access till E18 och E4, vilket ger effektiva transportmöjligheter till Stockholm och Mälardalen.
Här får ni en flexibel lokal med moderna bekvämligheter och ett strategiskt läge. Kontakta oss för mer information eller för att boka en visning!
Altia Sweden, Swedish Match, Ramirent, Bilia och Svensk Kosttillskott
Parkeringsmöjligheter/garage:Parkeringsmöjligheter på fastigheten
Vägbeskrivning:Nära anslutning till E18 och E4
Viby 19:54
Byggår:1992
Planlösning:Se planritning bland bilder/PDF.
Goda kollektivtrafikförbindelser med pendeltåg och buss till centrala Stockholm
Ett visst serviceutbud av butiker och lunchrestauranger i närområdet
4 m
Lokalen kan nås via:Entré samt möjlig markport
Hiss:Ja
Kontraktlängd:Förhandlingsbart
Kontrakttyp:Förstahandskontrakt
Tillträde:Omgående