Kraftvägen 28
Brunna industriområde, Stockholm, 500 - 1331 m2
Anpassningsbar lokal med lager & kontor - från 500 kvm Nu finns möjligheten att hyra en rymlig och välunderhållen lager-...
Dokument
Viby 19-8_Planritning.pdfIndustri/Kontor/Lager, 1177 - 2770 m2, Stockholm, Brunna industriområde
Hyra: Kontakta annonsören
Nu finns möjlighet att hyra en lager-/verkstadslokal om totalt 2 770 kvm, belägen på markplan och anpassad för verksamheter som söker effektiva lagerytor i ett modernt och växande företagsområde. Lokalen erbjuder generös takhöjd, smidiga logistiklösningar och möjlighet till flexibla anpassningar för olika typer av verksamheter. Tillträde kan ske omgående om så önskas.
Flexibla hyresalternativ
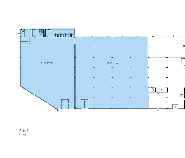
Lokalen kan hyras i sin helhet eller delas upp i två separata enheter om1 177 kvm respektive 1 593 kvm, vilket ger möjlighet att anpassa ytan efter verksamhetens behov.
Lokalens höjdpunkter
Varför välja Brunna företagsområde?
Brunna är ett strategiskt beläget företagsområde i Upplands-Bro kommun som erbjuder moderna och ändamålsenliga fastigheter för lager, logistik och produktion. Området har:
Denna lokal är en idealisk lösning för verksamheter som söker flexibla lager- eller verkstadsytor i ett strategiskt läge.
Kontakta oss redan idag för att boka en visning eller för mer information!
Brunna ligger i Upplands-Bro kommun och är ett modernt och snabbt växande företagsområde. Läget med nära anslutning till E18 och E4 ger snabba distributionsvägar till Stockholm och övriga Mälardalen. Här finns ett blandat utbud av handel, lager/logistik, lätt produktion och bostäder. Det finns goda kollektivtrafikförbindelser med pendeltåg och buss till centrala Stockholm.
Företag i närheten:Altia Sweden, Swedish Match, Ramirent, Bilia och Svensk Kosttillskott
Parkeringsmöjligheter/garage:Totalt finns cirka 30 p-platser på fastigheten, som delas med en annan hyresgäst
Vägbeskrivning:Nära anslutning till E18 och E4
Upplands-Bro Viby 19:8
Byggår:1976
Renoveringsår:2014
Våningsplan:1
Planlösning:Se planritning bland bilder/PDF.
Goda kollektivtrafikförbindelser med pendeltåg och buss till centrala Stockholm
Ett visst serviceutbud av butiker och lunchrestauranger i närområdet
6 m
Lokalen kan nås via:Tre egna markportar
Kontraktlängd:Förhandlingsbart
Kontrakttyp:Förstahandskontrakt
Tillträde:Omgående