Armaturvägen 3D
Stockholm, 94 - 269 m2
Lediga kontorsytor med stor flexibilitet och möjlighet att anpassa efter önskemål Här finns en ledig kontorslokal om 269 kvm som...
Dokument
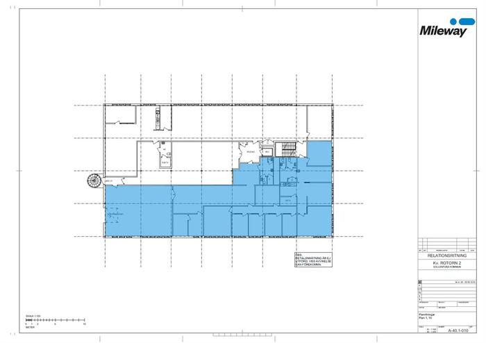
Rotorn 2-Unit 1102-Planritning.pdfKontor/Lager/Övrigt, 414 m2, Stockholm
Hyra: Kontakta annonsören
Modern kombilokal med stort lagerutrymme om totalt 414 kvm, strategiskt belägen på plan ett. Lagerytan på 190 kvm är rymlig och funktionell med en generös takhöjd om cirka 3,5 meter, vilket ger goda möjligheter för effektiv förvaring och hantering. Smidig in- och utlastning sker via ett gemensamt lastintag med lasthiss (kapacitet upp till 1000 kg) eller via port i fasaden, vilket underlättar för olika typer av logistikbehov.
Utöver lagerutrymmet erbjuder lokalen 224 kvm kontor med en modern och fräsch standard, perfekt för administrativa uppgifter eller kundmottagning. Här finns också bekväma faciliteter såsom pentry, omklädningsrum, dusch och WC, vilket bidrar till en välfungerande och trivsam arbetsmiljö.
Denna lokal är idealisk för verksamheter som prioriterar ett välutrustat lager med praktiska tillgänglighetslösningar.
Bredden (tidigare kallat InfraCity) är ett väletablerat företagsområde som är strategiskt beläget mellan Stockholm och Arlanda. E4:an nås på ett par minuter med bil, centrala Stockholm på cirka 25 min och Arlanda på cirka 15 minuter. Det här är en modern, flexibel och komplett företagpark med lättindustri, lager, handel och brett serviceutbud.
Flera grönområden finns för exempelvis en lunchpromenad eller löptur. Det planeras för ett bostadsområde i närheten, vilket kommer att göra området ännu mer levande med service dygnet runt.
Företag i närheten:Bauhaus, SATS, Tesla, Swedbank, Lambertsson, Cramo, Mekonomen
Parkeringsmöjligheter/garage:Parkeringsplatser i anslutning till fastigheten
Skyltläge:Det tillgängliga läget bredvid E4:an gör det inte bara lättåtkomligt, utan ger också en hög synlighet och ett fantastiskt skyltläge. Som företag är Bredden därför en utmärkt plats att etablera sig på.
Vägbeskrivning:Nära anslutning till E4
Rotorn 2
Byggår:1987
Våningsplan:1
Planlösning:Se planritning bland bilder/PDF.
Närsta hållplats "Bergkällavägen", bussar går regelbundet med anknytning till pendeltåg Rotebro, Kallhäll samt Upplands Väsby och till tunnelbanan Kista (blå linje). Med bil nås E4an inom ett par minuter, Stockholm C 25 min, Uppsala 35 min och Arlanda på ca 15 minuter.
Brett serviceutbud i form av köpcenter, restauranger, matbutiker, gym, företagshälsovård, tandläkare, apotek, butiker, hotell etc.
3,5 m
Lokalen kan nås via:1 fasadport + 1 lasthiss (max 1000 kg)
Hiss:Ja
Kontraktlängd:Förhandlingsbart
Kontrakttyp:Förstahandskontrakt
Tillträde:Omgående.