Järngatan 1
Lomma, 360 m2
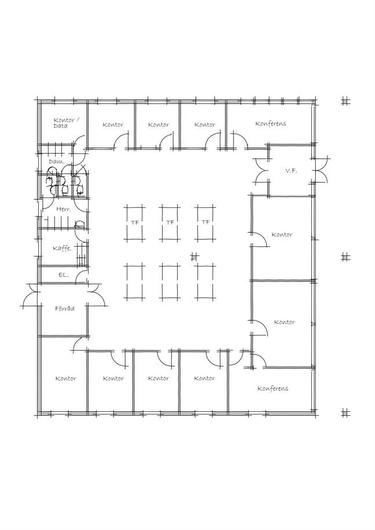
Separat kontorsbyggnad om ca 360 kvm fördelad på 12 st kontor/konferensrum samt stor/flexibel öppen yta i mitten på Järngatan 1...
Dokument
Järngatan 1 - Kontor.pdfIndustri/Kontor/Lager, 125 - 5220 m2, Lomma
Hyra: Ring för uppgift
Flexibla lokaler på Järngatan 1 i Lommas industriområde. Dels en separat kontorsbyggnad om ca 360 kvm fördelad på 12 st kontor/konferensrum samt stor/flexibel öppen yta i mitten. Den andra byggnaden (fördelad på 5 delar) är totalt ca 4.860 kvm, där den största delen är kallager samt delar för verkstad samt kontor. Lager 1-4 med lageryta i markplan om ca 3.860 kvm samt ca 600 kvm på plan 2.
Förslag på lämpliga verksamheter;
Lager och Logistikcenter:Med så högt i tak och en stor öppen yta kan lokalen användas för att lagra höga pallstaplar. Det är också möjligt att installera avancerade hyllsystem för effektiv varuhantering.
Produktionsanläggning:För företag inom tillverkningsindustrin skulle lokalen kunna innehålla maskiner och produktionslinjer. Takhöjden kan vara speciellt fördelaktig för maskiner som kräver vertikalt utrymme.
Bilhall eller Fordonsverkstad:Lokalen skulle kunna användas för att visa och sälja fordon, eller som en verkstad för reparation och underhåll av fordon. Entresolplanet kan användas för att förvara reservdelar, däck och fälgar.
Event- och Utställningshall:Högt i tak ger en känsla av rymd som kan vara attraktivt för mässor, konserter eller andra stora event.
Gym eller Sportanläggning:För sporter som kräver höga tak som klättring eller inomhusdrönarracing, eller för att inrymma stora grupper människor för gruppträning eller evenemang.
Filmstudio eller Produktionshus:Takhöjden kan vara fördelaktig för att bygga stora filmset eller för att hänga upp belysning och annan utrustning.
Grossisthandel:Ett utrymme där stora mängder varor kan lagras och sedan säljas vidare till detaljhandeln eller andra företag.
Möbel- eller Storvaruhus:Tillräckligt med plats för att visa stora möbeluppsättningar eller andra stora föremål, med entresolplanet som extra lagringsutrymme.
Fastigheten ligger bra placerad nära E6:an. I området finns där KåKå, matbutik, restaurang, biltvätt, bensinmack m.m. Med några minuter i bil tar ni er till Lomma centrum och hamn där ni hittar ett bra utbud av trevliga restauranger.
Parkeringsmöjligheter/garage:Parkering finns.
LOMMA 27:8
Planlösning:Flexibla lokaler. Går att dela efter behov. Dels en separat kontorsbyggnad om ca 360 kvm fördelad på 12 st kontor/konferensrum samt stor/flexibel öppen yta i mitten. Den andra byggnaden (fördelad på 5 delar) är totalt ca 4.860 kvm, där den största delen är kallager samt delar för verkstad samt kontor.
Fastigheten är belägen på ett strategiskt läge med närhet till både kollektivtrafik och ringvägar. Busshållplats finns på kort gångavstånd från fastigheten. E6 nås på några minuter med bil från fastigheten.
Goda kommunikationer till E6, butiker och lunchrestauranger på gångavstånd.
Kontraktlängd:Förhandlingsbart
Tillträde:Enligt överenskommelse
Hyresinformation:Ring för uppgift